901 Coolidge Street, Westfield
Recently Completed
A beautiful 5 bedroom, 4 full/2 half bathroom Colonial in desirable northside location. Completed July 2022!
Contact us for more information.
Visit our Instant Equity page to learn how we save our clients money on custom homes.
Click on any image below to explore this home—or scroll down for a description of the exterior, interior and finishing details.
SPECIFIC DETAILS INCLUDE THE FOLLOWING:
EXTERIOR:
- 95 x 170 Lot located on Coolidge Street
- A maintenance-free exterior with Hardie Plank Siding, Azek Trim and PVC Handrails
- Timberline Lifetime Warranty Roof
- 2 car garage with carriage style garage door with entrance to mudroom
- Paved driveway with Belgium block curbing
- Andersen 400 Series windows/screens with a pair of french doors leading to the rear covered and uncovered patio.
- Blue stone front porch, rear porch and mudroom walkout. Paver front walkway, side walkway, and rear patio.
- Custom front wood entryway door with glass sidelights.
- Professionally landscaped yard with sod and irrigation system for entire yard
- Window well drainage ties with perimeter and french drainage system.
INTERIOR:
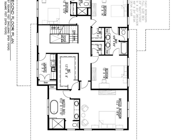
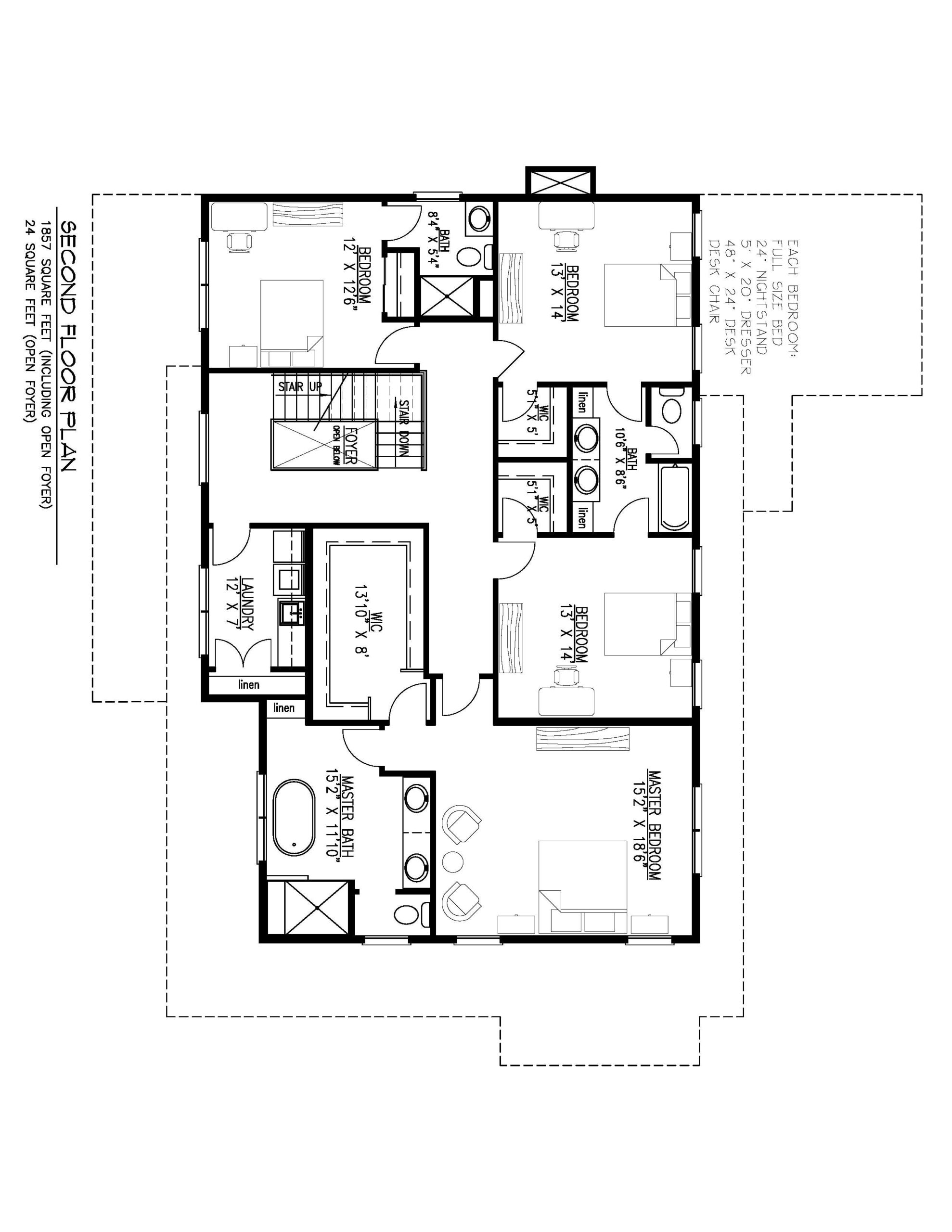
- 5 bedrooms, 4 full bathrooms, 2 half bathrooms
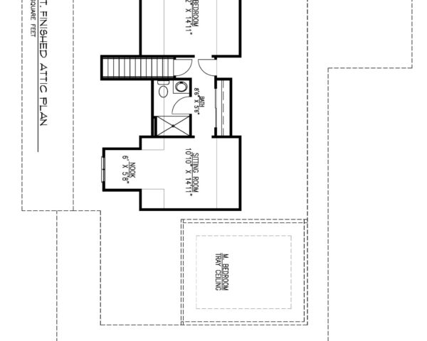
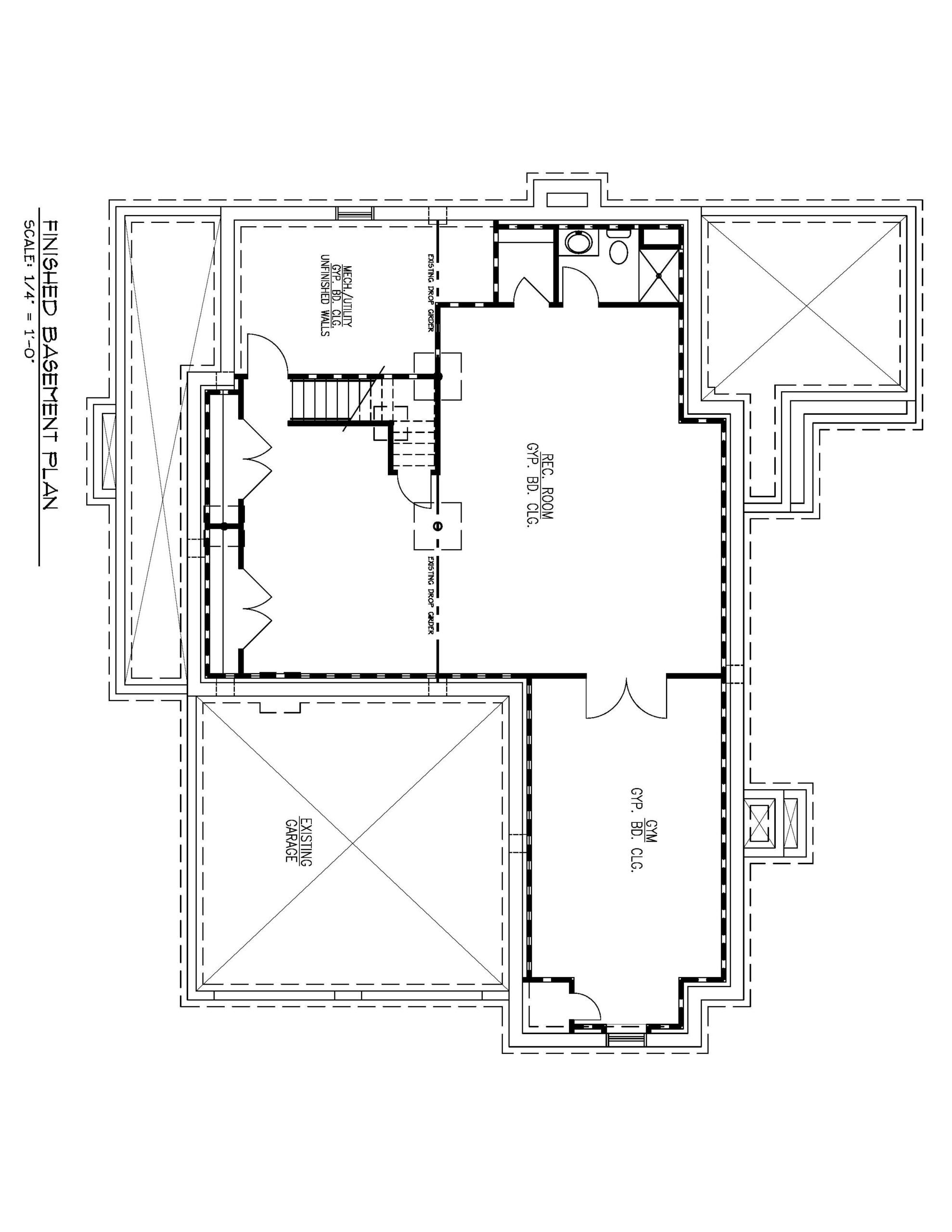
- Over 5,700 square feet of finished living space on 4 finished levels
- 9′ ceilings on the first floor and finished basement levels
- First floor contains a large Kitchen with butler’s pantry, and a family room with a fireplace. Elegant dining room as well as a mudroom off of the garage with 2 sets of built in cubbies.
- Designer eat-in kitchen with a large center island, stone counter tops, under mount stainless steel sink, stainless steel appliances, and a pantry for storage
- Jenn Air stainless steel appliance package including a 48″ refrigerator, 36″ professional range, dishwasher, hood and microwave.
- Second floor includes four bedrooms and three full bathrooms including a jack and jill bathroom and an ensuite bathroom.
- Second Floor Laundry room with stone countertops and a sink
- Master bedroom suite includes up-lit trey ceiling and a large walk in closet.
- Master bath includes a double sink Bertch vanity with stone counter tops, kohler fixtures and toilet, tub, an elegant walk-in shower with hand shower, stone bench seat, and a frame-less shower door enclosure
- Fully finished basement with a gym room and a half bathroom. Ceilings are drywalled and vinyl plank Coretec flooring is installed in the common area and rubber matt flooring in the gym room.
FINISH DETAIL:
- Exquisite millwork including crown molding and wainscot applied molding and shaker panel boxes throughout the entire first floor, up the stairs, and into the second floor hall areas.
- Coffered ceiling in the dining room
- Gas fireplace with custom mill work, and stone surround in the family room
- Custom built ins around the fireplace in the family room
- 3 1/4″ select grade white oak hardwood floors stained with 3 coats of water based polyurethane on the first floor, second floor hallway and attic. Carpeted flooring in the 2nd floor bedrooms.
- Generous lighting package in addition to an ample amount of recessed lights
- Solid core shaker doors throughout the house
- All bathrooms include Bertch vanities with stone counter tops
- 4 Zone gas fired forced air heating and air conditioning system with 2 stage furnaces and high efficiency 17 SEER condensers
- 200 Amp electrical service with transfer switch. Ready for future generator.
- Melamine closets in the mater and both jack and jill bedroom closets, custom built closets in all other closets.
- Grill ready for rear patio gas unit and future built in dinette
- Generator prepared for future setup with gas stub out supply, conduits for electrical runs and stone pad
- 10 tri-runs of CAT6/CAT6/Coax throughout the house terminating to basement patch panel. HDMI setups in the family room.
- Surround system pre-wired in family room
- Alarm system pre-wired on all accessible windows and doors
Ready to learn more about this home or discuss your custom project? Contact us.

















































