332 Longview Drive, Mountainside
Private Build
A beautiful 5 bedroom, 5 full/1 half bathroom Colonial in beautiful Mountainside. Coming July 2026!
Contact us for more information.
Visit our Instant Equity page to learn how we save our clients money on custom homes.
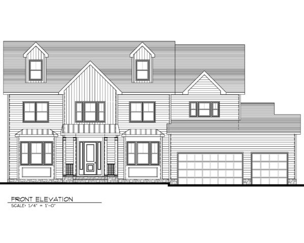
Click on any image below to explore this home—or scroll down for a description of the exterior, interior and finishing details.
SPECIFIC DETAILS INCLUDE THE FOLLOWING:
EXTERIOR:
- 1/3 acre Lot located on Longview Drive.
- A fully maintenance-free exterior with Hardie shakes and Hardie Cedarmill siding. Azek trim around all windows.
- Timberline Lifetime Warranty Roof
- Generous Azek trim package
- 3 car garage with carriage style garage door with entrance to mudroom
- Paved driveway with Belgium block curbing
- Andersen windows/screens with a pair of french doors leading to the rear yard.
- Blue stone front porch and paver front walkway, side walkway and rear patio.
- Custom front door with separated transoms and side lights
- Professionally landscaped yard with sod and irrigation system for entire yard
- Window well drainage ties with perimeter and french drainage systems
INTERIOR:
- 5 bedrooms, 5 full bathrooms, 1 half bathroom
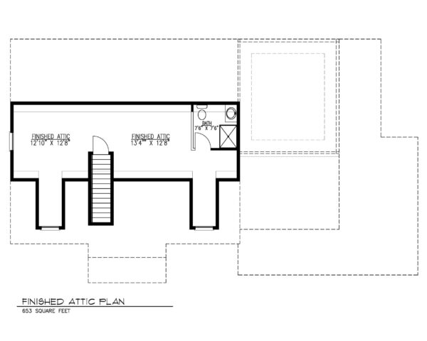
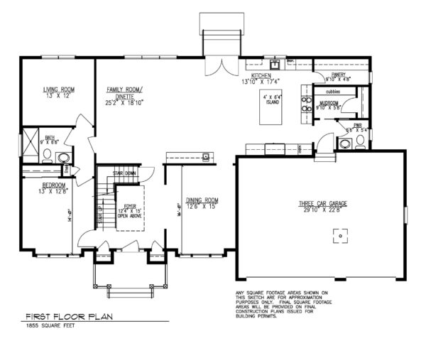
- Over 5,300 square feet of finished living space on 3 levels
- 10′ ceilings on the first floor and finished basement level, and 9′ ceilings on the 2nd floor
- First floor contains a large kitchen with scullery and family room. Elegant living room and dining room as well as a mudroom off of the garage
- Second floor includes four bedrooms and three full bathrooms including a hall bathroom and an ensuite bathroom.
- Master bedroom suite includes up-lit trey ceiling and an oversized walk in closet.
- Master bath includes a double sink Bertch vanity with stone counter tops, Kohler fixtures and toilet, stand alone soaker tub, and an elegant walk-in shower with hand shower, stone bench seat, and a frame-less shower door enclosure
- Fully finished basement with a gym room, office, and a large recreational area in addition to an oversized finished storage closet and full bathroom.
- Designer eat-in kitchen with center island, stone counter tops, under mount stainless steel sink, stainless steel appliances, under cabinet lighting, and a scullery for storage/food preparation.
- Jenn Air stainless steel appliance package including a 48″ refrigerator, 36″ professional range, wall oven, dishwasher hood and microwave.
- Second Floor Laundry room with upper cabinetry and utility sink
FINISH DETAIL:
- Exquisite millwork including crown molding and 1×4 applied molding and chair rail on the first floor up and up the stairs to the second floor hall areas.
- Coffered ceiling in the family room and tray ceiling in the dining room.
- Built in book shelves/cabinets in the family room.
- Mudroom built ins/cubbies with stained oak seat.
- 6″ white oak select grade hardwood floors with 3 coats of water based polyurethane on the first and second floors; carpet in basement common area and gym flooring in the gym room
- Generous lighting fixture package in addition to an ample amount of recessed lights
- Shaker style stile and rail solid doors throughout
- Kohler toilets and fixtures throughout
- All other bathrooms include Bertch vanities with stone counter tops
- 3 zone gas fired forced air heating and air conditioning systems with built in steam humidifier
- 200 Amp electrical service
- Custom built closets in all bedrooms except for the master bedroom closet which will be melamine
- Generac full house generator transfer switch installed in preparation for full house generator
- Grill ready for rear patio gas unit
- Alarm system ready – hardwired to all windows and doors and motion sensor locations
- Fully wired for network, television, alarm, cameras, speakers and WiFi access points throughout the house terminating to basement patch panels.
- Surround system pre-wired in family room
Ready to learn more about this home or discuss your custom project? Contact us.









