26 Mohawk Trail, Westfield
Recently Completed
A beautiful 5 bedroom, 4 full/2 half bathroom Colonial surrounded by newer homes on the street with close walking distance to Jefferson elementary, Edison middle and Westfield high school. Completed May 2020!
Contact us for more information.
Visit our Instant Equity page to learn how we save our clients money on custom homes.
Click on any image below to explore this home—or scroll down for a description of the exterior, interior and finishing details.
SPECIFIC DETAILS INCLUDE THE FOLLOWING:
EXTERIOR:
- 80 x 110 Lot located on Mohawk Trail
- A maintenance-free exterior with Deep Ocean Hardie Plank Siding, Azek Trim and PVC Handrails
- Timberline Lifetime Warranty Roof
- Generous Azek trim package
- 2 car garage with carriage style garage door with entrance to mudroom
- Paved driveway with Belgium block curbing
- Andersen windows/screens with a pair of french doors leading to the rear patio.
- Blue stone front porch and paver front walkway & rear patio
- Solid Mahogany front door with side lights
- Professionally landscaped yard with sod and irrigation system for entire yard
- Window well drainage ties with perimeter and french drainage systems
INTERIOR:
- 5 bedrooms, 4 full bathrooms, 2 half bathrooms
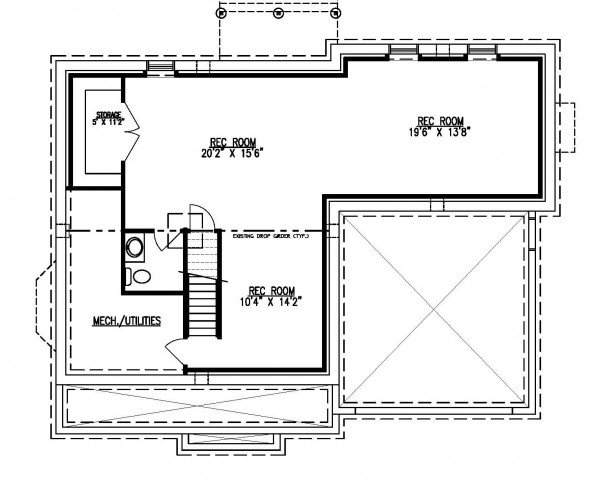
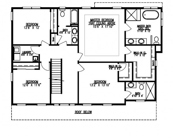
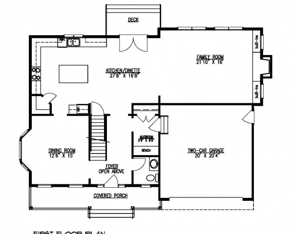
- Over 5,000 square feet of finished living space on 4 levels
- 9′ ceilings on the first floor and finished basement levels
- First floor contains a large Kitchen and Family room with a fireplace. Elegant dining room as well as a mudroom off of the garage
- Second floor includes four bedrooms and three full bathrooms including a hall bathroom and an ensuite bathroom.
- Master bedroom suite includes up-lit trey ceiling and a large walk in closet
- Master bath includes a double sink Bertch vanity with stone counter tops, kohler fixtures and toilet, tub, an elegant walk-in shower with hand shower, stone bench seat, and a frame-less shower door enclosure
- Fully finished basement for recreation with drywall ceiling, Cortex flooring and half bathroom
- Designer eat-in kitchen with a large center island, stone counter tops, under mount stainless steel sink, stainless steel appliances, and a pantry for storage
- Jenn Air stainless steel appliance package including a 48″ refrigerator, 36″ professional range, beverage center, dishwasher, hood and microwave.
- Second Floor Laundry room with dual washer/dryer setups
- Gas fireplace in the family room
FINISH DETAIL:
- Exquisite millwork including crown molding and wainscot applied molding and chair rail throughout the entire first floor, up the stairs, and into the second floor hall areas.
- Coffered ceiling with rope lighting s in the family room
- Gas fireplace with custom mantle, custom mill work, and marble stone surround in the family room
- Soild wood cabinetry around family room fireplace
- 3 1/4″ select red oak hardwood floors stained with 3 coats of water based polyurethane on the first, second and attic levels with Cortex flooring in the basement
- Generous lighting package in addition to an ample amount of recessed lights
- Shaker style stile and rail doors throughout
- All bathrooms include Bertch vanities with stone counter tops
- 4 Zone gas fired forced air heating and air conditioning system
- 200 Amp electrical service with generator ready Nexus transfer switch installed for full house gas unit
- Custom closets in all bedroom closets
- Grill ready for rear patio gas unit
- 9 tri-runs of CAT6/CAT6/Coax throughout the house terminating to basement patch panels. HDMI setups in master bedroom and family room.
- Surround system pre-wired in family room
Ready to learn more about this home or discuss your custom project? Contact us.








































