224 Avon Road, Westfield
Recently Completed
A beautiful 5 bedroom, 4 full/1 half bathroom modern farmhouse style home with 1 1/2 story family room. Completed March 2021!
Contact us for more information.
Visit our Instant Equity page to learn how we save our clients money on custom homes.
Click on any image below to explore this home—or scroll down for a description of the exterior, interior and finishing details.
SPECIFIC DETAILS INCLUDE THE FOLLOWING:
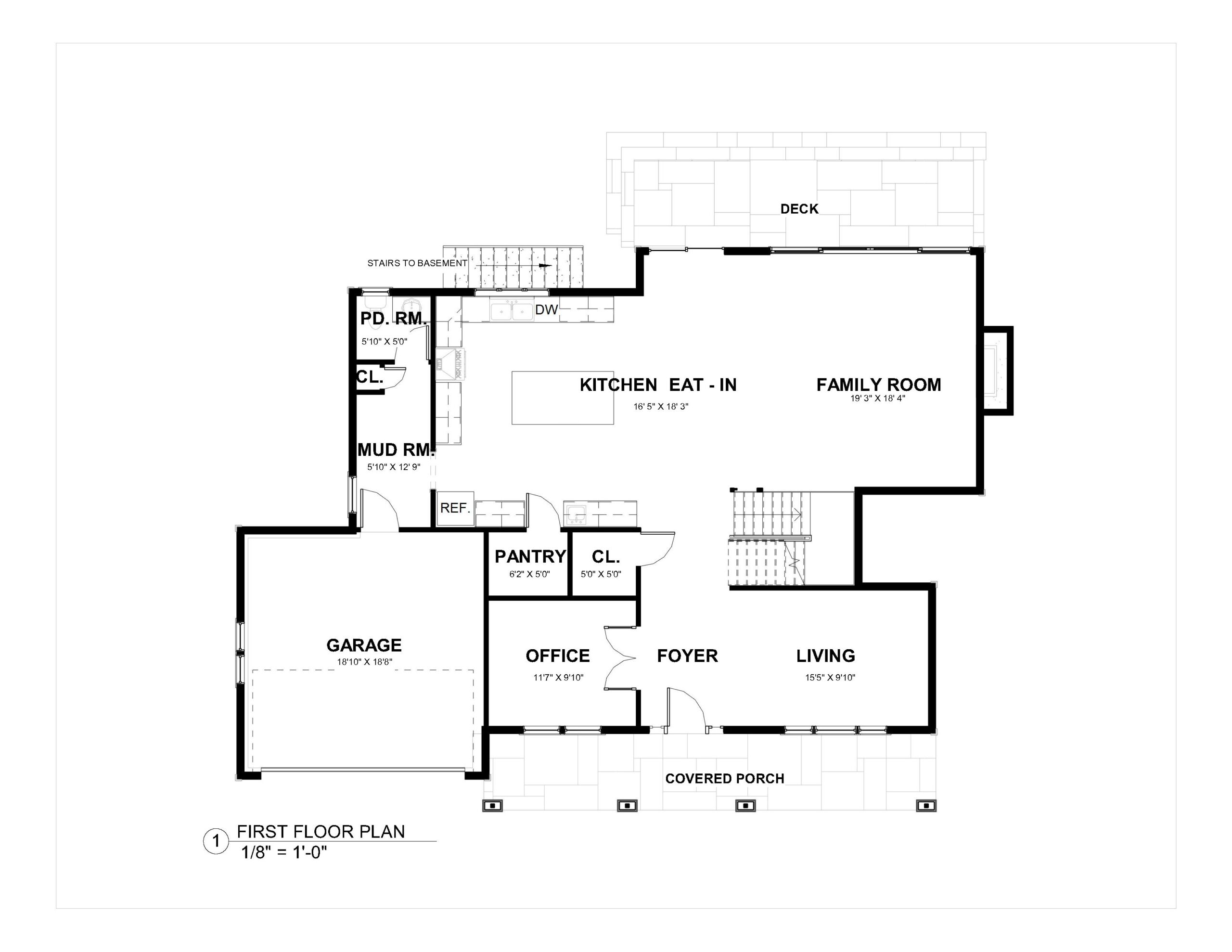
EXTERIOR:
- 81 x 120 Lot located on Avon Road
- A maintenance-free exterior with Arctic White Hardie Board and Batten strips in the front; and Arctic White Hardie Cedarmill Siding on the left, right and rear sides. Azek trim around all windows and doors and custom Azek front porch columns.
- Timberline Asphalt Lifetime Warranty Roof on upper roof and metal roof over front porch
- 2 car garage with carriage style garage door with entrance to mudroom
- Paved driveway with Belgium block curbing
- Andersen 400 windows/screens with a 12′ wide 4 panel door in the family room leading out to the rear porch.
- Blue stone front porch, rear bluestone/paver family room porch and paver front/side and rear walkways and rear patio
- Custom 8’0″ front door with side lights
- Professionally landscaped yard with sod and irrigation system for entire yard
- Window well drainage ties with perimeter and french drainage systems
INTERIOR:
- 5 bedrooms, 4 full bathrooms, 1 half bathroom
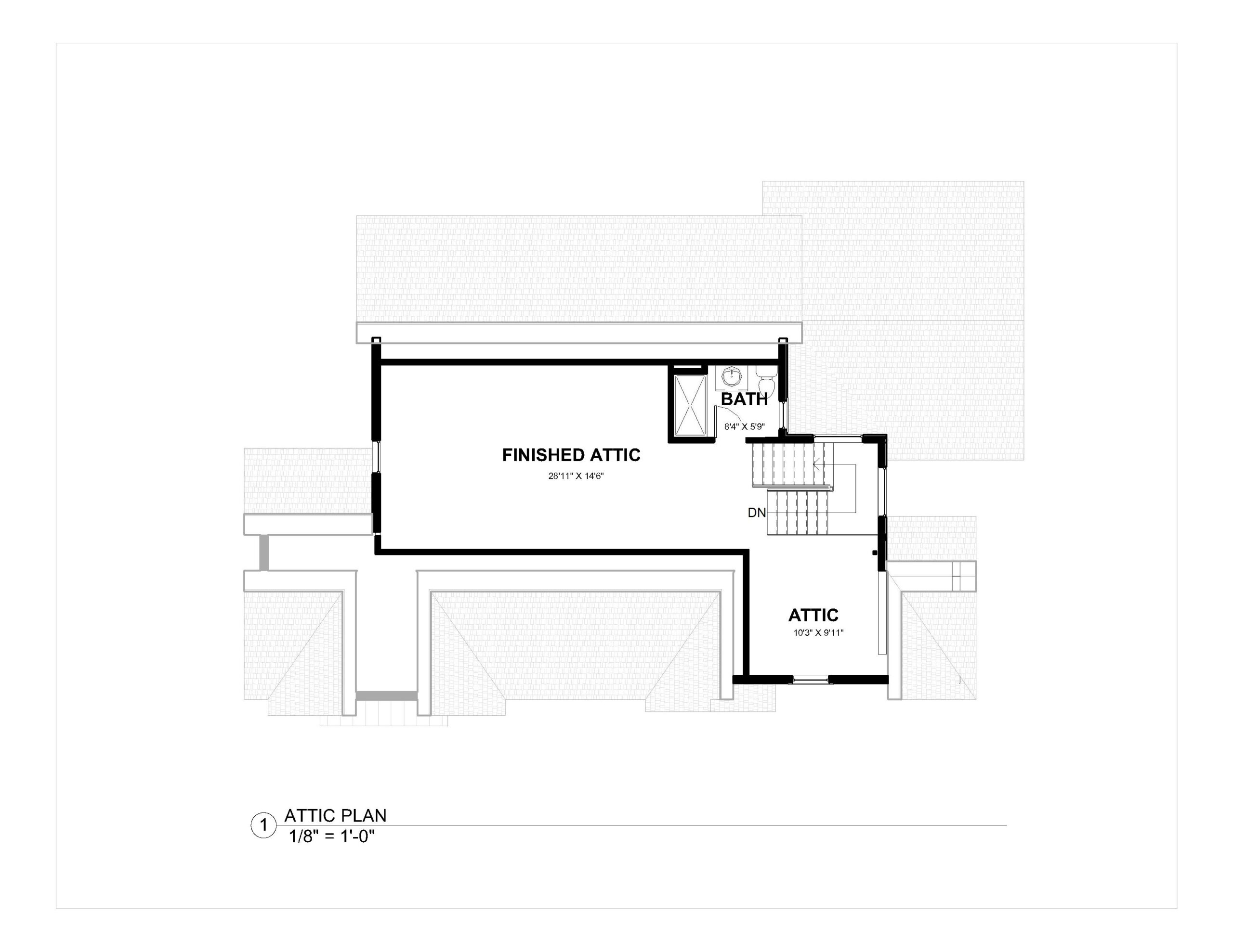
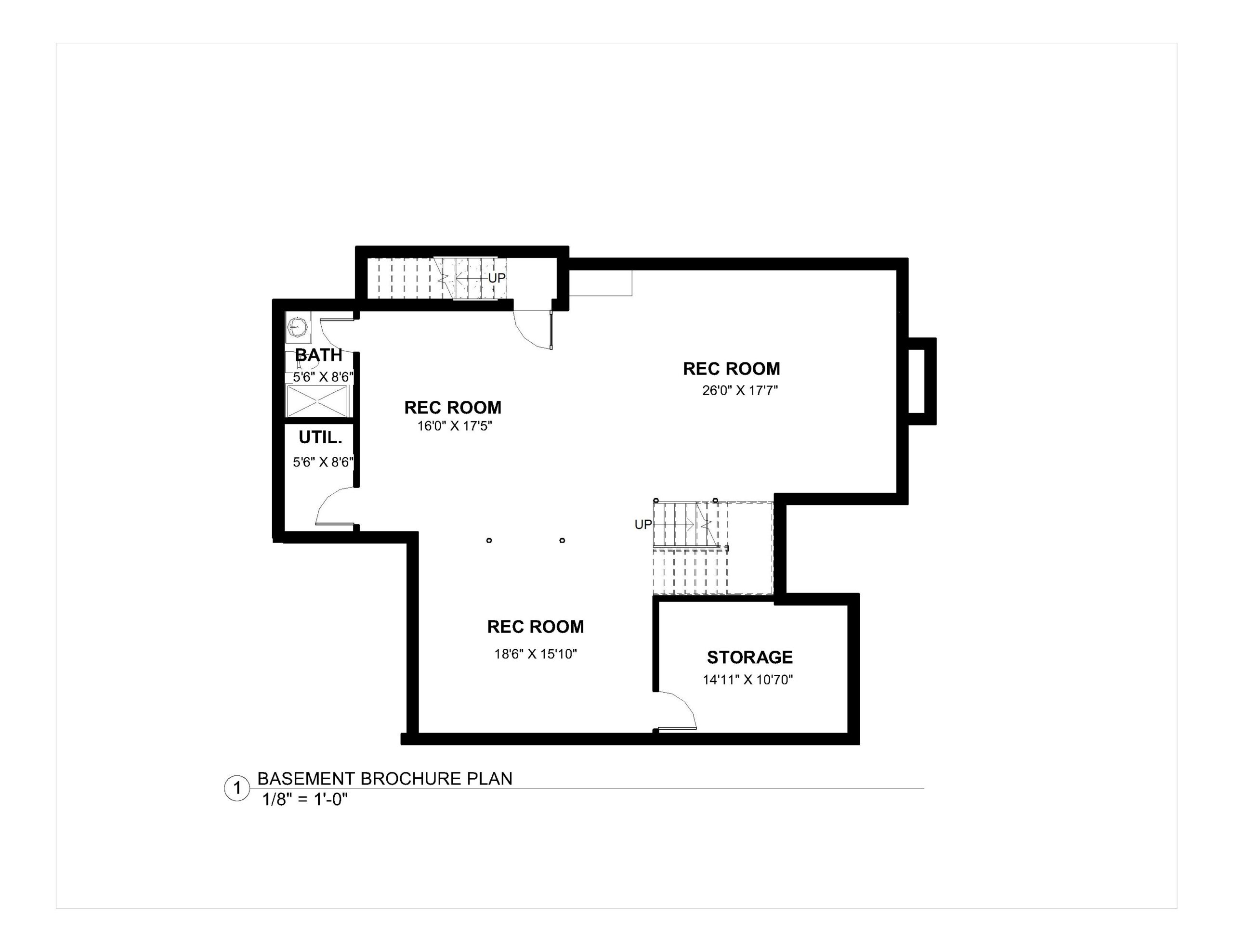
- Over 5,000 square feet of finished living space on 4 levels
- 9′ ceilings on the first floor and finished basement levels. Family room is a 1.5 story 12′ ceiling height room for optimal space.
- First floor contains a large Kitchen and Family room with a fireplace.
- Second floor includes four bedrooms and two full bathrooms.
- Master bedroom suite includes a large walk in closet with melamine closets.
- Master bath includes a double sink Bertch vanity with stone counter tops, kohler fixtures and toilet, tub, an elegant walk-in shower with hand shower, stone bench seat, and a frame-less shower door enclosure
- Fully finished open area basement for recreation and/or play room with drywall ceiling, carpeted floor and a full bathroom
- Designer kitchen with a large center island, stone counter tops, under mount stainless steel sink, stainless steel appliances, and a pantry for storage
- Jenn Air stainless steel appliance package including a 36″ refrigerator, 36″ professional range, beverage center, dishwasher, hood and microwave.
- Second Floor Laundry room with melamine cabinetry with utility sink
- Gas fireplace in the family room tiled from floor to ceiling.
FINISH DETAIL:
- Exquisite millwork including crown molding and raised panel molding throughout the entire first floor, up the stairs, and into the second floor hall areas.
- Coffered ceiling at 12′ height in the family room
- Gas fireplace with modern stone surround from floor to ceiling in the family room
- 3 1/4″ select red oak hardwood floors stained with 3 coats of water based polyurethane on the first, second and attic levels with carpet in the basement
- Generous lighting package in addition to an ample amount of recessed lights
- Shaker style – stile and rail doors throughout
- All bathrooms include Bertch vanities with stone counter tops
- 3 Zone high efficiency gas fired forced air heating and air conditioning system
- 200 Amp electrical service with generator ready Nexus transfer switch installed for full house gas unit
- Melamine Closets in Master and two other bedrooms. Custom closets built onsite in all remaining closets
- Grill ready for rear patio gas unit
- 9 tri-runs of CAT6/CAT6/Coax throughout the house terminating to basement patch panels. HDMI setups in master bedroom and family room.
- Surround system pre-wired in family room
Ready to learn more about this home or discuss your custom project? Contact us.



















































