221 Golf Edge, Westfield
Custom Home with our Instant Equity Program
This colonial boasts 5 bedrooms, 7 bathrooms with a full finished basement and attic backing up to Echo Lake Country Club. Completed January 2016!
Visit our Instant Equity page and learn the details on how we saved our client over $200,000! Call us today for more information!
Click on any image below to explore this home—or scroll down for a description of the exterior, interior and finishing details.
SPECIFIC DETAILS INCLUDE THE FOLLOWING:
EXTERIOR:
- 116×135 Lot located on one of the best streets in Westfield backing up to Echo Lake Country Club with a full view of the clubhouse!
- A fully maintenance-free exterior with Timber Bark Hardie Plank Siding, Stone Veneer, Azek Trim, Composite Shutters and PVC Handrails
- Timberline Lifetime Warranty Asphalt Roof with a copper roof over the front porch and bay windows
- Custom made solid mahogany double door entryway with wrought iron decorative detail
- 2 car garage with carriage house style garage door
- Paved driveway with Belgium block curbing
- Andersen windows/screens with a pair of french doors to the rear patio
- Bluestone front porch and paver walkway & large rear patio with built in kitchenette and fire pit
- 6′ Aluminum Fence with 2 gates enclosing the rear yard
- Professionally landscaped yard with sod and irrigation system
- Window well drainage ties with perimeter and french drainage systems. Over sized 6″ gutters with gutter guards.
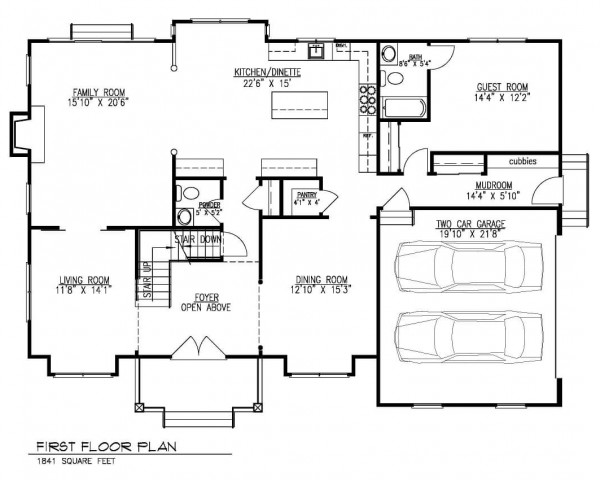
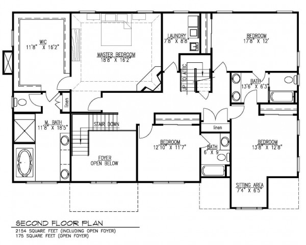
INTERIOR:
- 5 bedrooms, 6 full bathrooms, 1 half bathroom
- Over 6,300 square feet of finished living space on 4 levels
- 9′ ceilings on the first floor and finished basement levels
- First floor Au Pair bedroom with full bathroom; large Kitchen and Family room with fireplace. Elegant living room. Dining room with butler’s pantry
- Second floor includes four bedrooms and three full bathrooms; two bedrooms share Jack & Jill bath which includes a double vanity
- Attic includes a sixth bedroom which could also be used as an office or play room
- Master bedroom suite includes up-lit trey ceiling, two walk in closets, and fireplace
- Master bath includes a double sink Bertch vanity with stone counter tops, kohler fixtures and toilet, jetted tub, and elegant walk-in shower with body sprays and frameless shower door enclosure
- Fully finished open area basement with with full bathroom and separate gym room
- Designer eat-in kitchen with a center island, stone counter tops, under mount stainless steel sink, Jenn Air stainless steel appliances, and pantry for storage
- Butler’s pantry with wine cooler/refrigerator and sink
- Second Floor Laundry room for convenience with utility sink
- 2 Gas fireplaces—one in the family room and one in the master bedroom suite
FINISH DETAIL:
- Exquisite millwork including double crown molding and wainscot molding and chair rail throughout the first floor, coffered ceilings in the dining room and family room
- 3 1/4″ select redwood hardwood floors stained with 3 coats of polyurethane on the first and second floors; carpet in basement
- 2 Gas fireplaces with custom mantles, custom millwork, and stone surrounds in the Master bedroom & family room
- Generous lighting package in addition to 35+ recessed lights
- Raised panel solid core doors throughout
- Kohler toilets and fixtures throughout
- All other bathrooms include Bertch vanities with stone counter tops
- Spray foamed insulation package with air exchangers
- 3 Zone gas fired forced air heating & air conditioning system with 2 stage furnaces on each unit and high efficiency 18 SEER Condensers with steam humidifiers
- 200 Amp electrical service
- Custom closets in all bedroom closets
- Generator ready for full house gas unit
- Alarm system installed- hardwired to all windows and doors, motion sensor locations, and keypads
- 9 tri-runs of CAT5E/CAT5E/Coax throughout the house terminating to basement patch panels. HDMI setups in master bedroom and living room.
- Chandelier lift in foyer
- Surround system in family room
- LED under cabinet lighting in Kitchen and Butler’s pantry
- LED rope lighting in grand foyer with a double trey ceiling and master bedroom
- Instant Hot water circulating loop piping installed with pump
- Pre piped for future 2nd hot water heater if future desired
Ready to learn more or discuss your project? Contact us.











































