205 Sunset Avenue, Westfield
Recently Completed
A beautiful 6 bedroom, 5 full/2 half bathroom Colonial in desirable Wilson School northside location. Completed June 2021!
Contact us for more information.
Visit our Instant Equity page to learn how we save our clients money on custom homes.
Click on any image below to explore this home—or scroll down for a description of the exterior, interior and finishing details.
SPECIFIC DETAILS INCLUDE THE FOLLOWING:
ALL NEEDS TO BE UPDATED BY GI OFF OF SPECS
EXTERIOR:
- 100×120 Lot located on Sunset Avenue. Desirable north side location in Wilson School district.
- A fully maintenance-free exterior with Light Mist Hardie Cedarmill Siding and Azek trim around all windows.
- Timberline Lifetime Warranty Roof
- Generous Azek trim package
- 2 car garage with carriage style garage door with entrance to mudroom
- Paved driveway with Belgium block curbing
- Andersen 400 Series windows/screens with a pair of doors leading to the rear patio from the dinette and a pair from the family room to the rear covered porch
- Blue stone front porch and paver front walkway
- Covered rear deck for expansive outdoor living with room for a future pool
- Custom front door with side lights
- Professionally landscaped yard with sod and irrigation system for entire yard
- Window well drainage ties with perimeter and french drainage systems
INTERIOR:
- 6 bedrooms, 5 full bathrooms, 2 half bathrooms
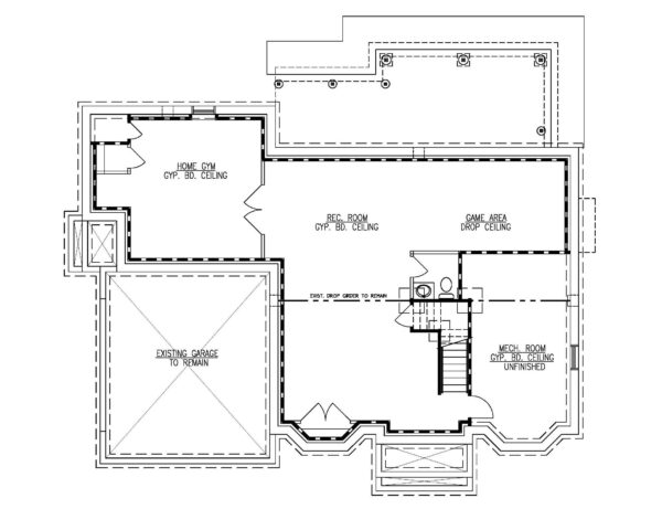
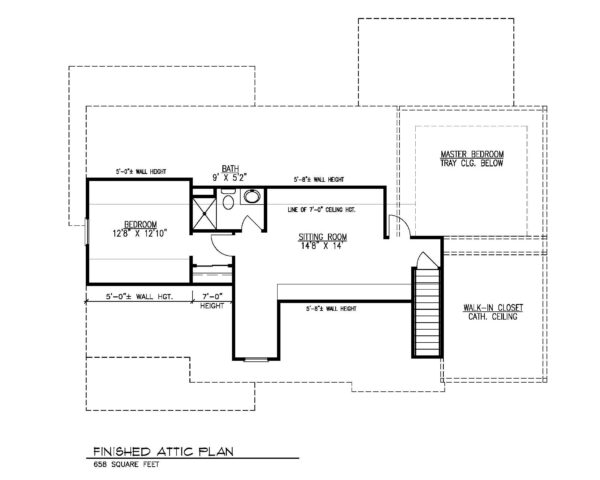
- Over 6,000 square feet of finished living space on 4 levels
- 9′ ceilings on the first floor and finished basement levels
- First floor contains a large Kitchen and Family room with a fireplace. Elegant living room and dining room as well as a mudroom off of the garage
- Second floor includes four bedrooms and three full bathrooms including a jack and jill bathroom and an en-suite bathroom.
- Master bedroom suite includes a trey ceiling and a massive walk in closet.
- Master bath includes a double sink Bertch vanity with stone counter tops, kohler fixtures and toilet, stand alone soaker tub in the shower, and a frame-less shower door enclosure
- Fully finished basement with a bathroom and a separate room designated for a gym. Basement is fully drywalled with cortex flooring and rubber mat gym flooring.
- Designer eat-in kitchen with center island, stone counter tops, farm house sink, pot filler over range, stainless steel appliances, under cabinet lighting, and a pantry for storage.
- Jenn Air stainless steel appliance package including a 48″ refrigerator, 36″ professional range, wall oven, dishwasher, hood, beverage center and microwave.
- Second Floor Laundry room with lower and upper cabinetry and utility sink
- Gas fireplace in the family room
FINISH DETAIL:
- Exquisite millwork including crown molding and 1×4 panel boxes molding and chair rail throughout the entire first floor, up the stairs, and into the second floor hall areas.
- Panel box feature wall in the dining room. Window bench seat with doors in the living room.
- Gas fireplace with custom mantle, custom mill work, and cultured stone surround in the family room
- Built in book shelves/cabinets around family room fireplace
- 3 1/4″ select red oak hardwood floors with 3 coats of oil based polyurethane on the first, second and attic levels; vinyl plank flooring in basement common area and gym flooring in the gym room
- Generous lighting fixture package in addition to an ample amount of recessed lights
- Raised panel solid core doors throughout
- All other bathrooms include Bertch vanities with stone counter tops
- 3 Zone gas fired forced air heating and air conditioning systems
- 200 Amp electrical service
- Custom built on site closets in all bedroom closets except master which is melamine
- Generac full house generator installed with Nexus transfer switch installed
- Grill ready for rear patio gas grill
- Alarm system ready – hardwired to all windows and doors and motion sensor locations
- 10 tri-runs of CAT6/CAT6/Coax throughout the house terminating to basement patch panels. HDMI setups in master bedroom and living room.
- Surround system pre-wired in family room
Ready to learn more about this home or discuss your custom project? Contact us.





















































