20 Barchester Way, Westfield
Custom Home with our Instant Equity Program
A beautiful 7 bedroom, 8 bathroom Colonial in Indian Forrest. Completed May 2017!
Visit our Instant Equity page and learn the details on how we saved our client over $150,000!
Click on any image below to explore this home—or scroll down for a description of the exterior, interior and finishing details.
SPECIFIC DETAILS INCLUDE THE FOLLOWING:
EXTERIOR:
- .43 acre lot located on Barchester Way in the Indian Forest section of Westfield
- A fully maintenance-free exterior with Aged Pewter Hardie Plank Siding, Stone Veneer, Azek Trim and PVC Handrails
- Timberline HD Lifetime Warranty Roof
- Solid Mahogany front door entryway
- 3 car garage with carriage house style garage doors
- Paved driveway with inlaid paver curbing
- Anderson windows/screens and and several pairs of french doors
- Blue stone front porch and paver walkway
- Professionally landscaped yard with sod and irrigation system installed in the entire yard
- Window well drainage ties with perimeter and french drainage systems
- Rear walk out from basement to rear yard
INTERIOR:
- 7 bedrooms, 7 full bathrooms, 1 half bathroom
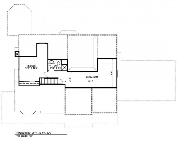
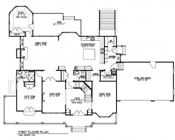
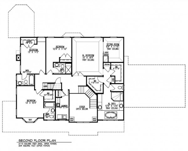
- Over 7,000 square feet of finished living space on 4 levels
- 9′ ceilings on the first floor and finished basement levels
- First floor Au Pair bedroom with full bathroom; large Kitchen and Family room with fireplace. Turret style office room. Elegant living room and Dining room,
- Second floor includes four bedrooms and four full bathrooms
- Master bedroom suite includes up-lit trey ceiling, two walk in closets, and fireplace
- Master bath includes a his and hers sinks in Bertch vanities with stone counter tops, kohler fixtures and toilet, jetted tub, and elegant walk-in shower with body sprays and frame-less shower door enclosure
- Fully finished open area basement with drywall ceiling, carpeted floor and full bathroom
- Designer eat-in kitchen with a center island, stone counter tops, under mount stainless steel sink, Jenn Air stainless steel appliances, and a large pantry for storage
- Second Floor Laundry room for convenience with utility sink
- Gas fireplace in the family room, living room and master bedroom
FINISH DETAIL:
- Exquisite millwork including crown molding and wainscot molding and chair rail on the first floor, double crown molding in the dining room, and up lit trey ceiling in the master bedroom.
- 3 sets of built-ins with stained oak bench seats as well as gorgeous master tub deck with shelving
- 3 1/4″ select redwood hardwood floors stained with 3 coats of polyurethane on the first and second floors; carpet in the attic and basement
- Gas fireplace with custom mantle, custom millwork, and stone surrounds in the family room, living room and master bedroom
- Generous lighting package in addition to 50+ recessed lights
- Raised panel solid core doors throughout
Kohler toilets and fixtures throughout - All other bathrooms include Bertch vanities with stone counter tops
- 3 Zone gas fired forced air heating & air conditioning system with 2 stage furnaces on each unit and 18 SEER Condensers
- Boiler system with radiant floors in all bathrooms, kitchen, foyer and mudroom
- 200 Amp electrical service
- Decora switches/outlets throughout
- Custom closets in all bedroom closets
- Entire house standby generator
- Central vacuum system
- Grill ready for rear patio gas unit
- Alarm system installed—hardwired to all windows and doors, motion sensor locations, and keypads
- 9 tri-runs of CAT5E/CAT5E/Coax throughout the house terminating to basement patch panels.
- HDMI setups in master bedroom and living room.
- Chandelier lift in foyer
- Under cabinet lighting in Kitchen and Butler’s pantry
Ready to learn more or discuss your project? Contact us.














































