694 Dorian Road, Westfield
Recently Completed
A beautiful 5 bedroom, 5.5 bathroom Colonial in a great location, walking distance to elementary, middle and high schools. Completed July 2018!
Contact us for more information.
SPECIFIC DETAILS INCLUDE THE FOLLOWING:
EXTERIOR:
- 70×135 Lot located on Dorian Road within walking distance of McKinley Elementary, Edison Intermediate and Westfield High Schools.
- A fully maintenance-free exterior with Night Gray Hardie Plank Siding, AzekTrim and PVC Handrails
- Timberline Lifetime Warranty Roof
- Generous Azek trim package
- 2 car garage with carriage style garage door with entrance to mudroom
- Paved driveway with Belgium block curbing
- Andersen windows/screens with a pair of french doors leading to the rear patio.
- Blue stone front porch and paver front walkway & rear patio
- Solid Mahogany front door with side lights
- Professionally landscaped yard with sod and irrigation system for entire yard
- Window well drainage ties with perimeter and french drainage systems
INTERIOR:
- 5 bedrooms, 5 full bathrooms, 1 half bathrooms
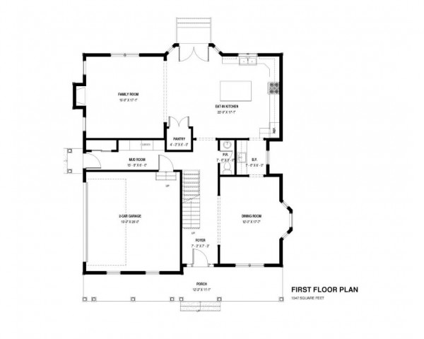
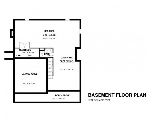
- Over 5,000 square feet of finished living space on 4 levels
- 9′ ceilings on the first floor and finished basement levels
- First floor contains a large Kitchen and Family room with a fireplace. Elegant living room and dining room as well as a mudroom off of the garage
- Second floor includes four bedrooms and three full bathrooms including a jack and jill bathroom and a princess bathroom.
- Master bedroom suite includes up-lit trey ceiling and a walk in closet
- Master bath includes a double sink Bertch vanity withstone counter tops, kohler fixtures and toilet, jetted tub, and elegant walk-in shower with 3 body sprays, stone bench seat, and a frame-less shower door enclosure
- Fully finished open area basement for recreation and/or play room with drywall ceiling, carpeted floor and full bathroom
- Designer eat-in kitchen with butler’s pantry and center island, stone counter tops, under mount stainless steel sink, stainless steel appliances, and a pantry for storage
- Jenn Air stainless steel appliance package including a 36″ refrigerator, 36″ professional range, dishwasher, beverage center, hood and microwave.
- Second Floor Laundry room with cabinetry and stone counter top with utility sink
- Gas fireplace in the family room and master bedroom with brick refractory kits, remotes and LED lighting
FINISH DETAIL:
- Exquisite millwork including crown molding and wainscot applied molding and chair rail throughout the entire first floor, up the stairs, and into the second floor hall areas.
- Coffered ceilings in the dining room and family room
- Transoms separate the foyer entrance and dining room as well as the kitchen dinette.
- Gas fireplaces with custom mantle, custom mill work, and cultured stone surrounds in the family room and master bedroom
- Built in book shelves/cabinets around family room fireplace
- 3 1/4″ select red oak hardwood floors stained with 3 coats of polyurethane on the first and second floors; cortex flooring in the basement
- Generous lighting package in addition to an ample amount of recessed lights
- Raised panel solid core doors throughout
- Kohler toilets and fixtures throughout
- All other bathrooms include Bertch vanities with stone counter tops
- 3 Zone gas fired forced air heating and air conditioning system
- 200 Amp electrical service
- Custom closets in all bedroom closets
- Generator ready for full house gas unit
- Grill ready for rear patio gas unit
- Alarm system ready – hardwired to all windows and doors and motion sensor locations
- 9 tri-runs of CAT5E/CAT5E/Coax throughout the house terminating to basement patch panels. HDMI setups in master bedroom and living room.
- Surround system pre-wired in family room
Ready to learn more about this home or discuss your custom project? Contact us.









































