670 Carleton Road, Westfield
Custom Home with our Instant Equity Program
This colonial boasts 5 Bedrooms, 5.5 Bathrooms with a short walk to the train station. Instant equity program. Completed January 2016!
Visit our Instant Equity page to learn how we save our clients money on custom homes.
Click on any image below to explore this home—or scroll down for a description of the exterior, interior and finishing details.
SPECIFIC DETAILS INCLUDE THE FOLLOWING:
EXTERIOR:
- Over a 1/4 acre lot located just a short walk to the Westfield train station
- A fully maintenance-free exterior with Deep Ocean Hardie Plank Siding, Stone Veneer, Azek Trim and PVC Handrails
- Timberline Lifetime Warranty Roof
- Custom solid mahogany front door entryway
- 2 car garage with carriage house style garage doors
- Paved driveway with Belgium block curbing
- Andersen windows/screens with a pair of french doors to the rear patio
- Blue stone front porch and walkway & rear paver patio
- Professionally landscaped yard with sod and irrigation system on entire yard
- Window well drainage ties with perimeter and french drainage systems
INTERIOR:
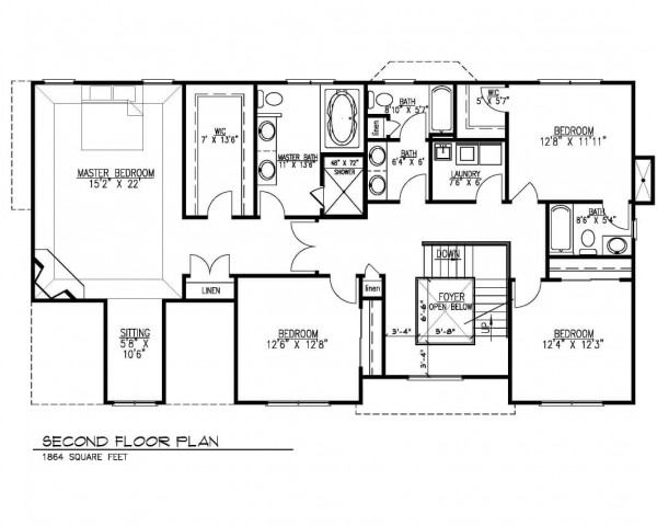
- 5 bedrooms, 5 full bathrooms, 1 half bathroom
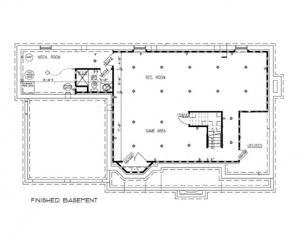
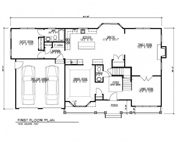
- Over 5,000 square feet of finished living space on 3 levels
- 9′ ceilings on the first floor and finished basement levels
- First floor Au Pair bedroom with full bathroom; large Kitchen and Family room with a wood burning fireplace. Elegant living room and large dining room.
- Second floor includes four bedrooms and three full bathrooms; Princess suite with full bathroom.
- Master bedroom suite includes up-lit trey ceiling, large walk in closet, siting area and a fireplace
- Master bath includes a double sink Bertch vanity with stone counter tops, kohler fixtures and toilet, jetted tub, and elegant walk-in shower with hand-held and frame-less shower door enclosure
- Fully finished open area basement with drywall ceiling, carpeted floor and full bathroom
- Designer eat-in kitchen with a center island, stone counter tops, under mount stainless steel sink, Jenn Air stainless steel appliances, and a pantry for storage.
- Second Floor Laundry room for convenience
- Wood burning fireplace in the family room and a gas fireplace in the master bedroom suite
FINISH DETAIL:
- Exquisite millwork including double crown molding and wainscot molding and chair rail throughout the first floor and up into second floor hallway area, coffered ceilings in the family room and dining room. Mudroom with built in cubbies.
- 3 1/4″ select redwood hardwood floors stained with 3 coats of polyurethane on the first, second and third floors; carpet in basement
- Fireplaces with custom mantles, custom millwork, and stone surrounds in the master bedroom & family room
- Generous lighting package in addition to 40+ recessed lights
- Raised panel solid core doors throughout
- Kohler toilets and fixtures throughout
- All other bathrooms include Bertch vanities with stone counter tops
- Fully tiled bathrooms as well as mudroom and laundry room.
- 2 Zone gas fired two stage forced air heating units & high efficiency 18 SEER air conditioning condensers along with a steam humidifier
- 200 Amp electrical service
- Circulating loop ‘instant hot’ water throughout the house
- Custom closets in all bedroom closets
- Generator ready for full house gas unit
- Grill ready for rear patio gas unit
- Alarm system ready—hardwired to all windows and doors and motion sensor locations
- 9 tri-runs of CAT5E/CAT5E/Coax throughout the house terminating to basement patch panels. HDMI setups in master bedroom and living room.
- Surround system pre-wired in family room
- PVC chase from attic to basement for future low voltage/satellite tv/etc. runs
Ready to learn more or discuss your project? Contact us.




































