56 May Drive, Chatham
Recently Completed
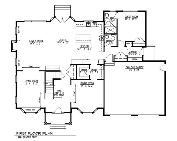
This colonial boasts 7 bedrooms, 6 bathrooms with a full finished basement in Chatham . Completed September 2021!
Visit our Instant Equity page to learn how we save our clients money on custom homes.
Click on any image below to explore this home—or scroll down for a description of the exterior, interior and finishing details.
SPECIFIC DETAILS INCLUDE THE FOLLOWING:
EXTERIOR:
- .47 acre lot in Chatham Township
- A fully maintenance-free exterior with Arctic White Hardie Board and Batten strips and Hardie Cedarmill Siding on the left, right and rear sides. Azek trim around all windows.
- GAF Timberline HD Lifetime Warranty Roof and metal roof over the front porch and bay windows
- Custom front entryway with glass sidelights and transom
- 2 car garage with carriage house style garage doors
- Paved driveway with Belgium block curbing
- 400 Series Anderson windows/screens with a pair of french doors to the rear patio
- Blue stone front, rear and side porches, paver front and side/rear walkways & large 20×30 rear paver patio
- Professionally landscaped yard with sod and irrigation system covering entire yard with rain sensor
- Window well drainage ties with perimeter and french drainage systems. Over sized 6″ gutters.
INTERIOR:
- 7 bedrooms, 5 full bathrooms, 1 half bathroom
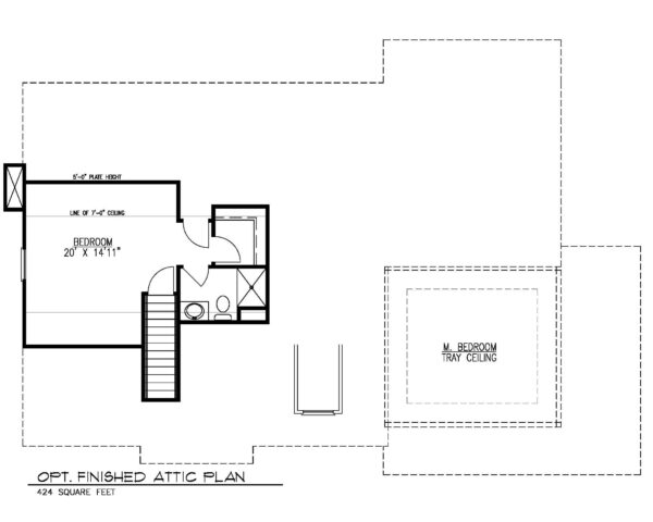
- Over 5,600 square feet of finished living space on 3 levels (future finished attic optional with a full bath and a bedroom). Attic prepared for ease of future finishing.
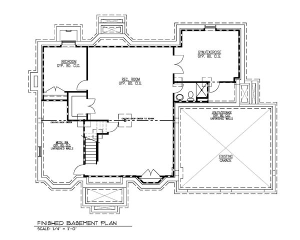
- 10′ ceilings on the first floor and 9′ ceilings on the finished basement level
- First floor Au Pair bedroom with full bathroom; large Kitchen and Family room with fireplace. Elegant living room. Dining room with butler’s pantry
- Second floor includes five bedrooms and three full bathrooms
- Master bedroom suite includes up-lit trey ceiling and two large walk in closets
- Master bath includes a double sink Bertch vanity with stone counter tops, Kohler fixtures and toilet, soaker tub, and and elegant walk-in shower with hand held and frame-less shower door enclosure
- Fully finished basement with drywall ceiling, carpeted floor and full bathroom, bedroom and gym room
- Stunning Master Kitchen with solid wood cabinets to the ceiling
Designer eat-in kitchen with a center island, stone counter tops, under mount stainless steel sink, Jenn Air stainless steel appliances, and a large pantry for storage - Jenn Air and Miele appliances include 48″ built in refrigerator, dishwasher, 6 burner professional range, microwave and beverage center.
- Butler’s pantry with wine cooler/beverage center and sink
- Second Floor Laundry room for convenience with utility sink and stone counter tops
- Family room gas fireplace with LED accent lighting, black ceramic glass interior and remote control
FINISH DETAIL:
- Exquisite millwork including crown molding, 1×4 panel box molding throughout the first floor, up the stairs and in the second floor hallway.
- Coffer ceiling in the family room
- Mudroom with cubbies with a oak bench seat
6″ white oak hardwood floors stained with 3 coats of polyurethane on the first and second floors; carpet and gym room rubber flooring in basement - Gas fireplace with custom oak top, custom millwork, and tile surround in the family room
- Generous lighting package in addition to ample recessed LED lights
- Style and rail solid core doors throughout
- Kohler toilets and fixtures throughout
- Cast iron bathtubs in all bathrooms
- All bathrooms include Bertch vanities with stone counter tops and matching stone sills/saddles/corner shelves
- 3 Zone gas fired forced air heating & air conditioning system with 17 SEER AND 14.5 SEER condensers
- Steel beam construction to minimize basement columns
- 200 Amp underground electrical service
- Custom closets in all bedroom closet and melamine closets in the master
- 22KW Generac Generator full house gas unit
- Grill ready for rear patio gas unit
- Alarm system installed- hardwired to all windows and doors, motion sensor locations, and keypads
- 9 tri-runs of CAT5E/CAT5E/Coax throughout the house terminating to basement patch panels. HDMI setups in master bedroom.
- 1/2 HP garbage disposal in kitchen sink
- Surround system pre-wired in family room and master bedroom
- LED under cabinet in the Kitchen and Butler’s pantry
- Instant Hot water circulating loop piping installed with aquastat and pump
Ready to learn more or discuss your project? Contact us.














































