834 New England Drive, Westfield
Recently completed
A beautiful 5 bedroom, 4 full/2 half bathroom Colonial in a great location, walking distance to elementary, middle and high schools. Completed June 2019!
Contact us for more information.
SPECIFIC DETAILS INCLUDE THE FOLLOWING:
EXTERIOR:
- 100×161 Lot located on New England Drive within walking distance of Tamaques Elementary School.
- A fully maintenance-free exterior with Arctic White Hardie Plank Shingle Siding, AzekTrim and PVC Handrails
- Timberline Lifetime Warranty Roof
- Generous Azek trim package
- 2 car garage with carriage style garage door with entrance to mudroom
- Paved driveway with Belgium block curbing
- Andersen windows/screens with a pair of french doors leading to the rear patio.
- Blue stone front porch and paver front walkway & rear patio
- Custom front door with separated transoms and side lights
- Professionally landscaped yard with sod and irrigation system for entire yard
- Window well drainage ties with perimeter and french drainage systems
INTERIOR:
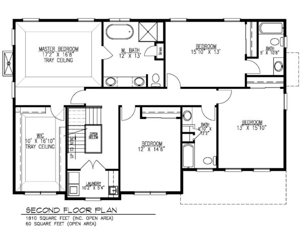
- 5 bedrooms, 4 full bathrooms, 2 half bathrooms
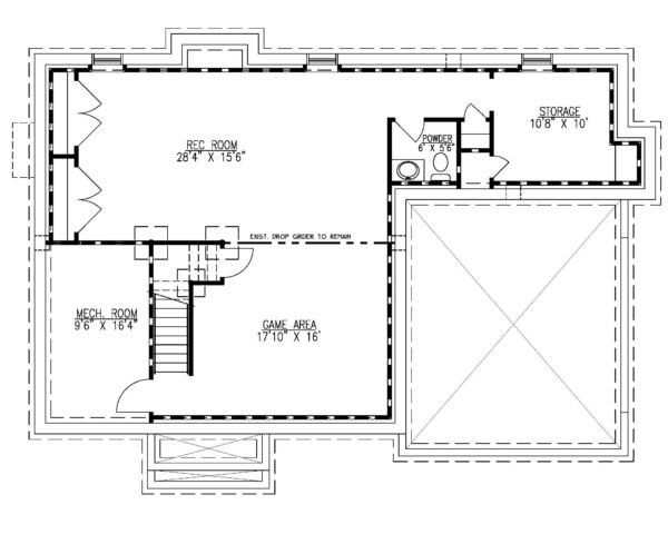
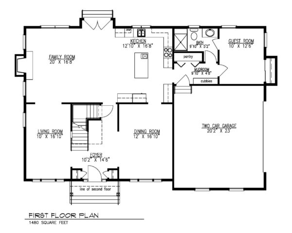
- Over 4,800 square feet of finished living space on 3 levels
- 9′ ceilings on the first floor and finished basement levels
- First floor contains a large Kitchen and Family room with a fireplace. Elegant living room and dining room as well as a mudroom off of the garage
- Second floor includes four bedrooms and three full bathrooms including a hall bathroom and a princess bathroom.
- Master bedroom suite includes up-lit trey ceiling and a large walk in closet with melamine closet setup
- Master bath includes a double sink Bertch vanity with stone counter tops, kohler fixtures and toilet, drop in soaker tub, and elegant walk-in shower with 3 body sprays, rain head, stone bench seat, and a frame-less shower door enclosure
- Fully finished open area basement for recreation and/or play room with drywall ceiling, carpeted floor and half bathroom
- Designer eat-in kitchen with center island, stone counter tops, under mount stainless steel sink, stainless steel appliances, and a pantry for storage
- Jenn Air stainless steel appliance package including a 42″ built in refrigerator, 36″ professional range, wall oven, dishwasher hood and microwave.
- Second Floor Laundry room with cabinetry and stone counter top with utility sink enclosed by barn door setup
- Gas fireplace in the family room
FINISH DETAIL:
- Exquisite millwork including crown molding and wainscot applied molding and chair rail throughout the entire first floor, up the stairs, and into the second floor hall areas.
- Coffered ceiling in the dining room
- Gas fireplace with custom mantle, custom mill work, and stone surround in the family room
- Built in book shelves/cabinets around family room fireplace
- 3 1/4″ select red oak hardwood floors stained with 3 coats of polyurethane on the first and second floors; carpet in basement
- Generous lighting package in addition to an ample amount of recessed lights
- Raised panel solid core doors throughout
- Kohler toilets and plumbing fixtures throughout
- Other bathrooms include Bertch vanities with stone counter tops
- 2 Zone gas fired forced air heating and air conditioning system with built in steam humidifier
- 200 Amp electrical service
- Custom closets in all bedroom closets
- Generator ready with Nexus transfer switch installed for full house gas unit
- Grill ready for rear patio gas unit
- Alarm system ready – hardwired to all windows and doors and motion sensor locations
- 8 tri-runs of CAT5E/CAT5E/Coax throughout the house terminating to basement patch panels. HDMI setups in master bedroom and living room.
- Surround system pre-wired in family room
Ready to learn more about this home or discuss your custom project? Contact us.












































