10 Bell Drive, Westfield
Recently Completed
A beautiful 6 bedroom, 5 full/1 half bathroom Colonial. With close walking distance to Jefferson elementary, and in the districts of Edison intermediate and Westfield high schools. Completed November 2024!
Contact us for more information.
Visit our Instant Equity page to learn how we save our clients money on custom homes.
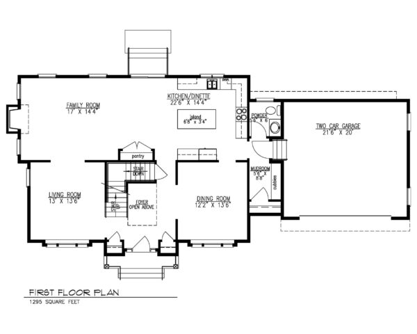
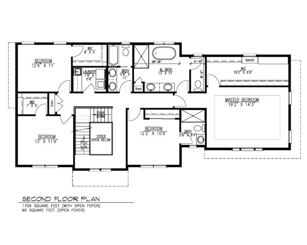
Click on any image below to explore this home—or scroll down for a description of the exterior, interior and finishing details.
SPECIFIC DETAILS INCLUDE THE FOLLOWING:
EXTERIOR:
- 96 x 105 Lot located on Bell Drive
- A maintenance-free exterior with Hardie Plank Siding, Azek Trim, and cultured stone
- Timberline lifetime warranty asphalt roof and standing seam aluminum roofing over the lower front portions of the front of the house.
- Generous Azek trim package
- 2 car garage with carriage style garage door with entrance to mudroom
- Paved driveway with Belgium block curbing
- Andersen windows/screens with a pair of doors leading to the rear patio.
- Blue stone front porch. Paver front walkway, side walkway, and rear patio around the existing pool which was rejuvenated with all new relocated pool equipment and supply/return lines.
- Custom front entry door with side lights.
- Azek decking with solid Timbertech handrails for rear dinette exit.
- Professionally landscaped yard with sod and irrigation system for entire yard
- Window well drainage ties in with the perimeter and french drainage systems.
INTERIOR:
- 6 bedrooms, 5 full bathrooms, 1 half bathrooms
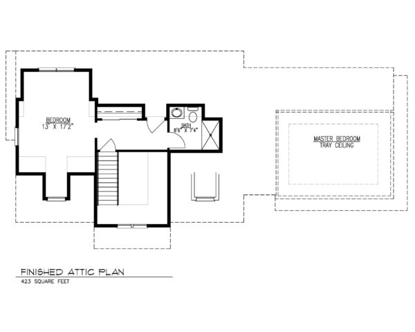
- Approximately 5,000 square feet of finished living space on 4 finished levels
- 9′ ceilings on the first floor and finished basement levels
- First floor contains a large Kitchen and Family room with a fireplace. Elegant dining room and living room as well as a mudroom off of the garage with cubbies and power room
- Second floor includes four bedrooms and three full bathrooms including a hall bathroom and an ensuite bathroom.
- Master bedroom suite includes up-lit trey ceiling and a large walk in closet
- Master bath includes a double sink Bertch vanity with stone counter tops, kohler fixtures and toilet, tub, an elegant walk-in shower with hand shower, stone bench seat, and a frame-less shower door enclosure
- Fully finished basement for recreation with drywall ceiling, carpeted floor, full bedroom and half bathroom and a home gym room.
- Designer eat-in kitchen with a large center island, stone counter tops, under mount stainless steel sink, stainless steel appliances, and a pantry for storage
- Jenn Air stainless steel appliance package including a 42″ refrigerator, 36″ professional range, dishwasher, hood and microwave.
- Second Floor Laundry room with sink
- Gas fireplace in the family room
FINISH DETAIL:
- Exquisite millwork including crown molding and wainscot applied molding and shaker panel boxes throughout the entire first floor and in the second floor hall areas.
- Coffered 9 box ceiling in the family room
- 1×8 and 1×6 flat panel coffer ceiling in the dining room
- Gas fireplace with custom mantle, and all tile/stone surround in the family room
- Mudroom built ins with oak seat and vertical beadboard backing
- 3 1/4″ select grade red oak hardwood floors stained with water based polyurethane on the first, second and attic levels with carpeted flooring and rubber gym flooring in the basement
- Generous lighting package in addition to an ample amount of recessed lights
- Solid style and rail doors (shaker style) throughout the house with 8′ on the first floor
- All bathrooms include Bertch vanities with stone counter tops
- 4 Zone gas fired forced air heating and air conditioning system with 2 stage furnaces and high efficiency condensers (14.5 and 17+ SEER)
- 200 Amp electrical service with transfer switch for future generator
- Custom built in closets in all bedroom closets
- Grill ready for rear patio gas unit
- Generator prepared for future setup with transfer switch, gas stub out supply, conduits for electrical runs, and stone pad.
- Ample tri-runs of CAT6/CAT6/Coax throughout the house terminating to basement utility room. HDMI setups in master bedroom and family room.
- Surround system pre-wired in family room
- Alarm system pre-wired on all accessible windows and doors
Ready to learn more about this home or discuss your custom project? Contact us.






















































