211 Golf Edge, Westfield
Recently completed
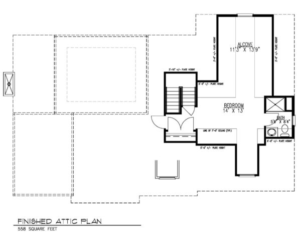
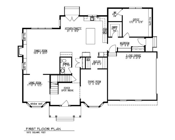
This colonial boasts 5 bedrooms, 6 bathrooms with a full finished attic and basement backing up to Echo Lake Country Club. Completed April 2019!
Visit our Instant Equity page and learn the details on how we saved our client over $150,000! Call us today for more information!
Click on any image below to explore this home—or scroll down for a description of the exterior, interior and finishing details.
SPECIFIC DETAILS INCLUDE THE FOLLOWING:
EXTERIOR:
- 120×133 Lot located on one of the best streets in Westfield backing up to Echo Lake Country Club with a full view of the golf course clubhouse!
- A maintenance-free exterior with Arctic White Hardie Plank Siding, Stone Veneer, Azek Trim and Timbertech PVC Handrails
- GAF Timberline HD Lifetime Warranty Roof
- Custom front entryway with solid mahogany door
- 2 car garage with carriage house style garage door
- Paved driveway with Belgium block curbing
- 400 Series Anderson windows/screens with a pair of french doors to the rear patio
- Blue stone front porch, paver front walkway and a 15×15 rear paver patio
- Professionally landscaped yard with sod and irrigation system covering entire yard with rain sensor
- Window well drainage ties with perimeter and french drainage systems. Over sized 6″ gutters.
INTERIOR:
- 6 bedrooms, 5 full bathrooms, 1 half bathroom
- Over 6,200 square feet of finished living space on 4 levels.
- 9′ ceilings on the first floor and finished basement levels
- First floor Office with custom built ins; large Kitchen and Family room with fireplace. Elegant living room. Dining room with butler’s pantry
- Second floor includes four bedrooms and three full bathrooms including a Jack and Jill setup.
- Master bedroom suite includes LED up-lit trey ceiling and a large walk in closet
- Master bath includes a double sink Bertch vanity with make up station with stone counter tops, Kohler fixtures and toilet, cast iron soaking tub, and an elegant walk-in shower with hand held and frame-less shower door enclosure
- Fully finished open area basement with drywall ceiling, carpeted floor and full bathroom
- Stunning Master Kitchen with solid wood Conestoga cabinets
- Designer eat-in kitchen with a center island, quartz counter tops, Jenn Air stainless steel appliances, and a large pantry for storage
- Jenn Air appliances include 42″ built in refrigerator, dishwasher, 6 burner professional range, oven, microwave and a beverage center
- Butler’s pantry with beverage center
- Second Floor Laundry room for convenience with utility sink and stone counter tops
- Gas fireplace in the family room with LED accent lighting, brick refractory kit and remote control
FINISH DETAIL:
- Exquisite clean line style millwork throughout.
- Coffer ceilings in the dining room and family room
- Mudroom with cubbies with a stained oak bench seat
- 1st Floor office custom built-ins
- Melamine style closets in the master bedroom
- 3 1/4″ select redwood hardwood floors stained with 3 coats of polyurethane on the first, second, and attic floors; carpet in basement
- Gas fireplace with custom mantle, custom millwork, and stone surrounds in the family room
- Generous lighting package in addition to ample recessed LED lights throughout the house
- Raised panel solid core doors throughout
- Kohler toilets and fixtures throughout
- Cast iron bathtubs in all bathrooms
- All bathrooms include Bertch vanities with stone counter tops and matching stone sills/saddles/corner shelves
- 4 Zone gas fired forced air heating & air conditioning system with 18 SEER AND 14.5 SEER condensers
- Steel construction to minimize basement columns
- 200 Amp electrical service
- Custom MDF closets in all bedrooms and custom melamine closet in the master bedroom
- Generator ready for full house gas unit
- Frameless shower doors in the master and semi-framelss in all other bathrooms
- Grill and firepit gas stub out ready for rear patio
- Generator ready with gas stub out and conduit
- Alarm system installed- hardwired to all windows and doors, motion sensor locations, and keypads
- 9 tri-runs of CAT5E/CAT5E/Coax throughout the house terminating to basement patch panels. HDMI setups in master bedroom and living room.
- 1/2 HP garbage disposal in kitchen sink
- Surround system pre-wired in the family room
- LED under cabinet lighting in the Kitchen and Butler’s pantry
- Instant Hot water circulating loop piping installed for instant hot water
Ready to learn more or discuss your project? Contact us.








































