32 Mohawk Trail, Westfield
Under Contract
A beautiful 6 bedroom, 6.5 bathroom Colonial. Walking distance to Jefferson elementary, Edison middle and Westfield high school. Completed March 2018!
Visit our Instant Equity page to learn how we save our clients money on custom homes.
Click on any image below to explore this home—or scroll down for a description of the exterior, interior and finishing details.
SPECIFIC DETAILS INCLUDE THE FOLLOWING:
EXTERIOR:
- 120×110 Lot located on Mohawk Trail.
- Fully maintenance-free exterior with Light Mist Hardie Plank Siding, Stone Veneer, Azek Trim, and PVC Handrails
- Timberline HD Lifetime Warranty Asphalt Roof and metal roof above porch, bay windows, and garage overhang
- Custom solid Mahogany wood front door entryway with sidelites and divided, insulated, privacy beveled glass
- 2 car oversized garage with carriage house style garage door
- Paved driveway with Belgium block curbing
- Andersen windows/screens with a pair of french doors from the dinette and basement walkout to the rear paver patio
- Blue stone front porch, side exit steps, and rear basement walkout
- Professionally landscaped yard with sod and irrigation system in entire yard with rain sensor
- Window well drainage ties with perimeter and french drainage systems
- Rear walk out from basement to rear yard with grand entry featuring blue stone caps and piers with lights and cultured stone. Tiled basement area ‘pool house’ room
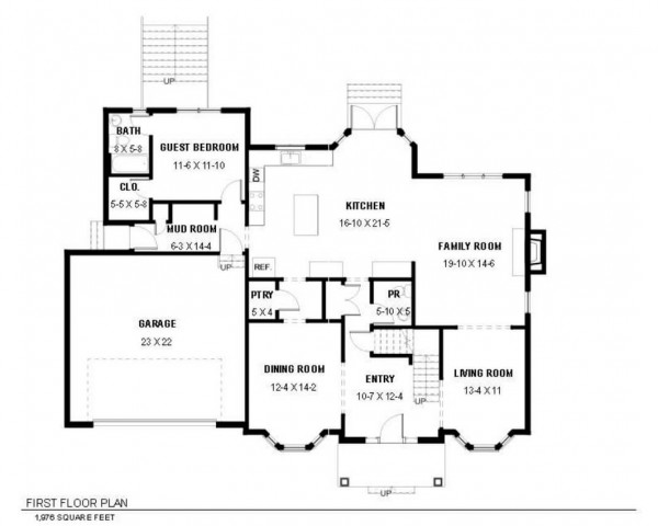
INTERIOR:
- 6 bedrooms, 6 full bathrooms, 1 half bathroom
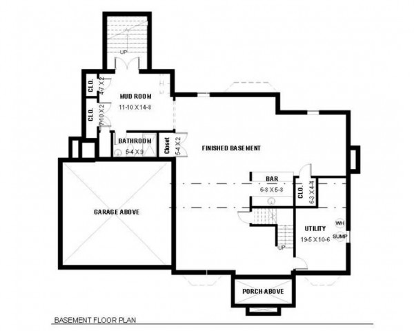
- Over 5,100 square feet of finished living space on 4 levels
- 9′ ceilings on the first floor and finished basement levels
- First floor Au Pair bedroom with full bathroom; large Kitchen and Family room with fireplace. Elegant living room and large dining room.
- Second floor includes four bedrooms and three full bathrooms; Hall bath room with double vanity and ensuite bedroom with bathroom.
- Master bedroom suite includes up-lit trey ceiling, large walk in closet, and fireplace
- Master bath includes a double sink Bertch vanity with stone counter tops, Kohler fixtures and toilet, jetted drop in tub, and elegant walk-in shower with hand shower and frame-less shower door enclosure
- Fully finished open area basement with drywall ceiling, carpeted floor. Full bathroom, ‘pool house’ area, and wet bar
- Designer eat-in kitchen with a center island, under cabinet lighting, stone counter tops, under mount stainless steel sink, butler’s pantry sink, Jenn Air stainless steel appliances (36″ range, 42″ built in refrigerator, microwave, dishwasher, beverage refrigerator), and a large pantry for storage.
- Second Floor Laundry room for convenience with utility sink and stone countertops
- 2 Gas fireplaces—one in the family room and one in the master bedroom suite
FINISH DETAIL:
- Exquisite millwork including double crown molding and wainscot molding and chair rail throughout the first floor and up into second floor hallway area, coffered ceilings in the family room, built-in’s in the family room and cubbies in the mudroom
- 3 1/4″ select redwood hardwood floors stained with 3 coats of polyurethane on the first, second and attic floor; carpet in basement
- 2 gas fireplaces with custom mantles, custom millwork, and stone surrounds in the Master bedroom & family room
- Generous lighting package in addition to 75+ recessed lights
- Raised panel solid core doors throughout
- Kohler toilets and fixtures throughout
- All other bathrooms include Bertch vanities with stone counter tops
- 3 Zone gas fired forced air heating & air conditioning system with steam humidifier and media filters
- 200 Amp electrical service
- Custom closets in all bedroom closets including melamine designer closet in the master.
- Generator ready for full house gas unit
- Grill ready for rear patio gas unit
- Alarm system ready—hardwired to all windows and doors and motion sensor locations
- LED under cabinet lighting in the Kitchen and Butler’s pantry
- Instant Hot water circulating loop with aquastat and pump for instant hot water
- 9 tri-runs of CAT5E/CAT5E/Coax throughout the house terminating to basement patch panels. HDMI setups in master bedroom and living room.
- Surround system pre-wired in family room
Ready to learn more or discuss your project? Contact us.















































