378 Orenda Circle, Westfield
Recently Completed
This colonial boasts 7 bedrooms, 8 bathrooms with a full finished basement in the Franklin school district section of Westfield! Another new addition to beautiful Orenda Circle. Completed January 2025!
Visit our Instant Equity page to learn how we save our clients money on custom homes.
Click on any image below to explore this home—or scroll down for a description of the exterior, interior and finishing details.
SPECIFIC DETAILS INCLUDE THE FOLLOWING:
EXTERIOR:
- 100×148 lot located in the Indian Forest section of Westfield on Orenda Circle!
- A maintenance-free exterior with Hardie Plank Siding throughout the entire house, real stone veneer accents, Azek trim and Timbertech PVC Handrails
- Large rear covered bluestone porch with cedar soffit and infrared heating
- GAF Timberline HD Lifetime warranty roof with metal roofing over front porch.
- Custom double door front entryway.
- 2 car garage with carriage house style garage door
- Paved driveway with Belgium block curbing
- 400 Series Anderson windows/screens with a pair of french doors to the rear patio and rear covered porch area
- Blue stone front porch, paver front and side/rear walkways and rear paver patio
- 6′ aluminum fence with 2 gates enclosing the rear yard
- Professionally landscaped yard with sod and irrigation system covering entire yard with rain sensor
- Window well drainage ties with perimeter and french drainage systems. Over sized 6″ gutters.
- Rear yard retaining wall to maximize rear yard entertaining area
INTERIOR:
- 7 bedrooms, 7 full bathrooms, 1 half bathroom
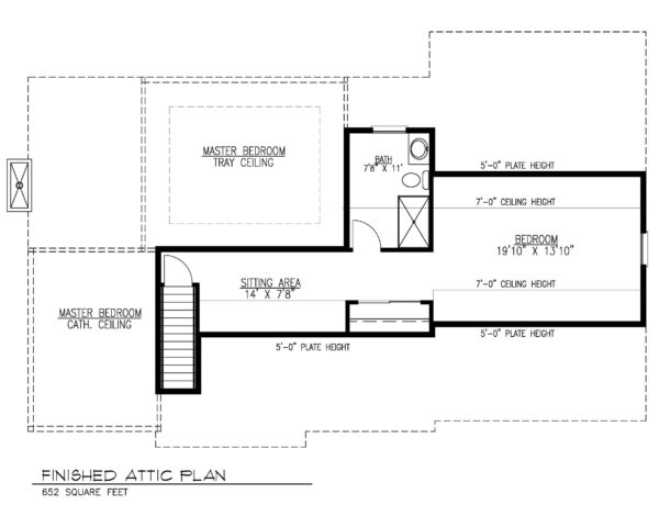
- Over 6,200 square feet of finished living space on 4 levels.
- 9′ ceilings on the first floor and finished basement levels
- First floor bedroom with full bathroom; large Kitchen with butler’s pantry and Family room with fireplace. Elegant living room and dining room.
- Second floor includes four bedrooms and four full bathrooms—each bedroom has it’s own bathroom.
- Master bedroom suite includes up-lit trey ceiling and a large walk in closet with California closet style custom setup.
- Master bath includes a double sink Bertch vanity with stone counter tops,
- Kohler fixtures, a freestanding tub, and elegant walk-in shower with hand held, body sprays, and frame-less shower door enclosure.
- Fully finished open area basement with drywall ceiling, carpeted floor, gym room, and full bedroom and bathroom.
- Stunning Master Kitchen with solid wood inset cabinets to the ceiling.
Designer eat-in kitchen with a center island, stone counter tops, farm house sink stainless steel appliances, and a large pantry for storage - Appliances include 48″ Sub Zero built in refrigerator, Cove dishwasher, Wolf 6 burner professional range, Wolf Oven, Wolf microwave and Sub Zero beverage center.
- Second Floor Laundry room for convenience with utility sink and stone counter tops.
- Gas fireplace in the family room with LED accent lighting, matte black refractory kits and remote controls.
FINISH DETAIL:
- Exquisite millwork including crown molding and 1×4 applied molding and chair rail throughout the entire first floor, up the stairs, and into the second floor hall areas.
- Coffer ceilings in the dining room and family room
- Mudroom with cubbies with a stained oak bench seat and shiplap back
- 3 1/4″ select red oak hardwood floors with 3 coats of water based polyurethane on the first, second and attic floors; carpet and rubber gym flooring in the basement
- Gas fireplace with custom mantle and stone tiled surround in the family room
- Generous lighting package in addition to ample recessed LED lights
- Raised panel solid core two panel shaker style doors throughout
- Kohler toilets and fixtures throughout
- All bathrooms include Bertch vanities with stone counter tops and matching stone sills/saddles/corner shelves
- 4 Zone gas fired forced air 2stage heating & air conditioning systems with 17 SEER AND 14.5 SEER condensers
- Steel construction to minimize basement columns
- 200 Amp electrical service with transfer switch and 24KW generator
- Custom melamine closets in all bedroom closets on the first and 2nd floors as well as the pantry.
- Grill ready for rear patio gas unit
- Alarm system installed- hardwired to all windows and doors, motion sensor locations, and keypads
- 11 tri-runs of CAT5E/CAT5E/Coax throughout the house terminating to basement utility room. HDMI setup in the family room with surround sound wiring.
- 1/2 HP garbage disposal in kitchen sink
- LED under cabinet and in cabinet lighting in the Kitchen and Butler’s pantry
- Instant Hot water circulating loop piping installed with aqua stat and pump for instant hot water
Ready to learn more or discuss your project? Contact us.




























































