701 Shackamaxon Drive, Westfield
Instant Equity Program
A beautiful 6 bedroom, 5 full/1 half bathroom Colonial in desirable Tamaques School location. Completed May 2026!
Contact us for more information.
Visit our Instant Equity page to learn how we save our clients money on custom homes.
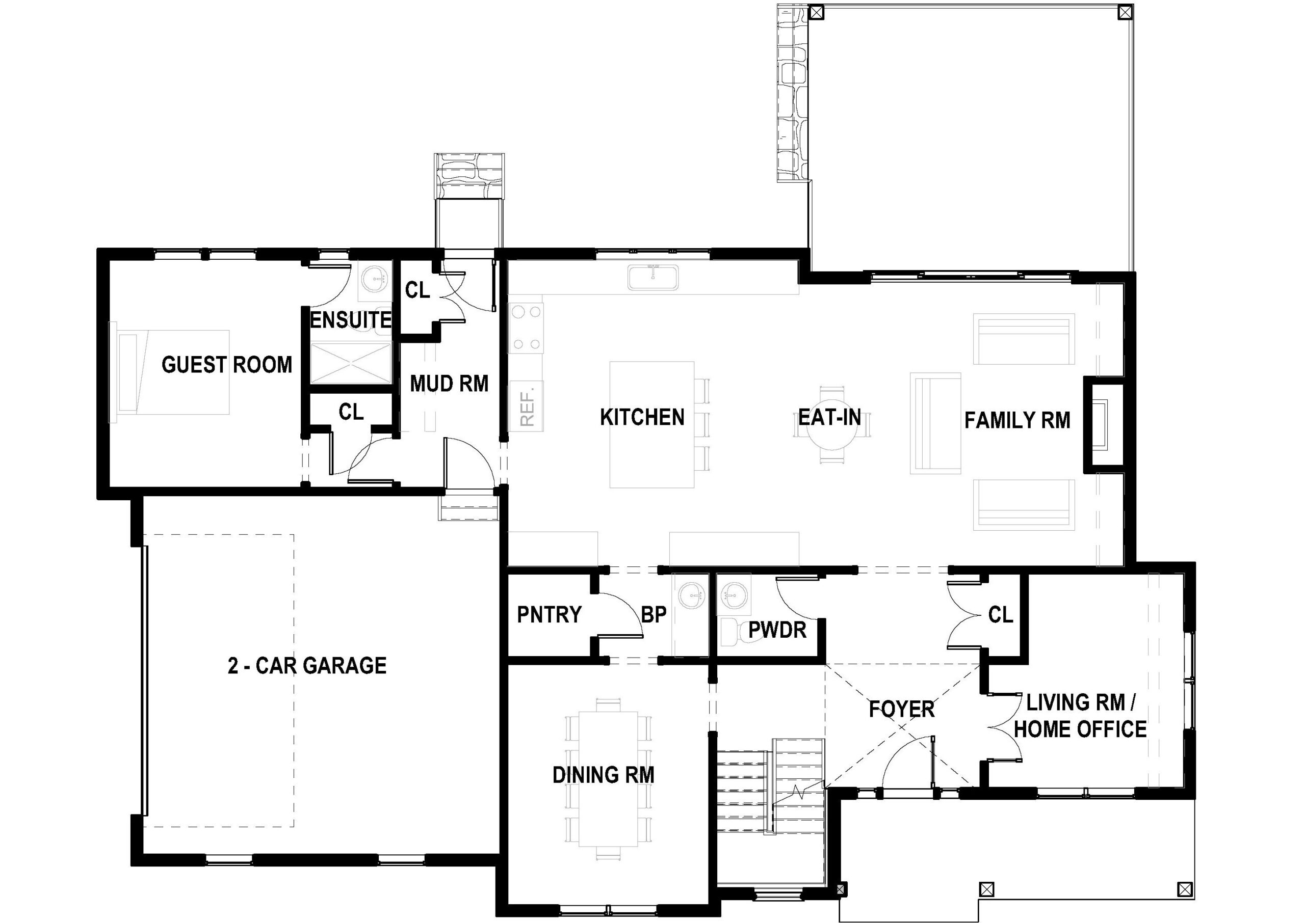
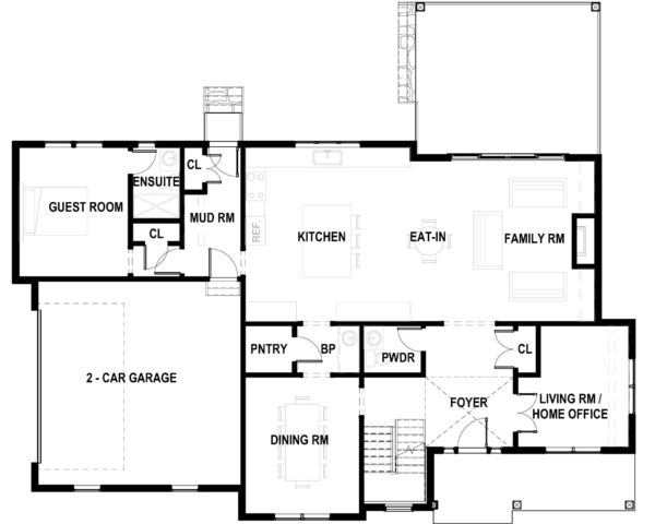
Click on any image below to explore this home—or scroll down for a description of the exterior, interior and finishing details.
SPECIFIC DETAILS INCLUDE THE FOLLOWING:
EXTERIOR:
- 102×133 lot located on beautiful Shackamaxon Drive.
- A fully maintenance-free exterior with stucco and painted brick throughout. Azek trim around all windows.
- GAF Timberline HD Lifetime Warranty Roof and standing seam aluminum roof over the front porch, garage roofs and parapet walls.
- 2 car garage with modern steel flush style garage door with belt drive openers for extra quiet operation.
- Paved driveway with Belgium block curbing.
- Andersen 400 Series casement windows/screens with a set of quad doors leading to the rear electrically heated covered porch from the family room.
- Masonry porches on the front porch and two rear porches.
- Paver walkways on front side and rear including around the 14×34 pool.
- Custom front door.
- Professionally landscaped yard with sod and irrigation system for entire yard
- Window well drainage ties with perimeter and french drainage systems
INTERIOR:
- 6 bedrooms, 5 full bathrooms, 1 half bathroom
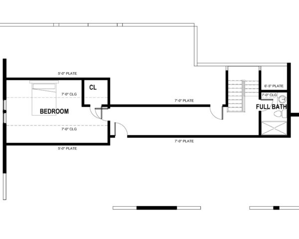
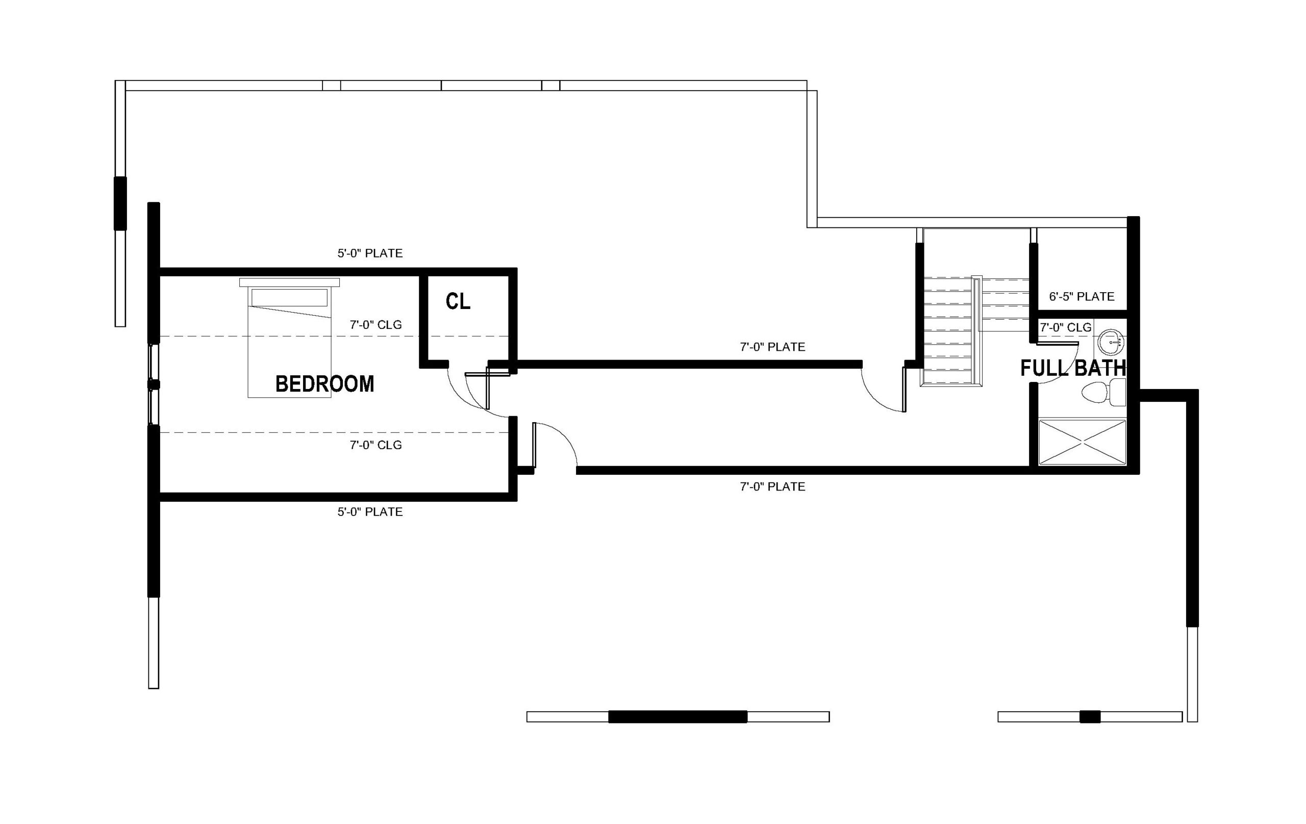
- Over 5,200 square feet of finished living space on 3 levels.
- 9′ ceilings on the first floor and basement levels and 8′ ceilings on the second floor.
- First floor contains a large Kitchen with butler’s pantry and Family room with a modern style fireplace. Elegant dining room as well as a mudroom off of the garage and a home office area off of the foyer.
- Second floor includes four bedrooms and three full bathrooms including a hall bathroom and an en-suite bathroom.
- Master bedroom suite includes up-lit trey ceiling and two walk in closets.
- Master bath includes his and hers vanities with stone counter tops, kohler fixtures, toto toilet, stand alone soaker tub, and elegant walk-in shower with hand shower, rain head, stone bench seat, and a completely frame-less shower door enclosure
- Fully finished basement with a bedroom, a separate gym room for recreation, and a large open area. All with drywalled ceilings, carpeted floor and full bathroom
- Designer eat-in kitchen with center island, stone counter tops, under mount sink, stainless steel appliances, in cabinet and under cabinet lighting, and a pantry for storage
- Wolf/Sub Zero/Cove stainless steel appliance package including a 48″ refrigerator, 36″ professional range, beverage center, dishwasher hood and microwave.
- Second Floor Laundry room with upper cabinetry and utility sink
FINISH DETAIL:
- Exquisite millwork including crown molding and 1″x4″ panel boxes applied throughout the entire first floor.
- Gas fireplace with tiled surround in the family room.
- Built in shelves/cabinets in the family room and built ins in the mudroom.
- 3 1/4″ select red oak hardwood floors with 3 coats of water based polyurethane on the first and second floors; Cortec vinyl flooring in the basement common area, and rubber mat gym flooring in gym room.
- Generous lighting fixture package in addition to an ample amount of recessed lights
- 8’0″ stile & rail 2 panel shaker doors on the first floor and 6’8″ on the second floor and basement.
- Toto toilets and Kohler fixtures throughout.
- All bathrooms include Bertch vanities with stone/quartz counter tops
- 3 zone high efficiency gas fired forced air heating and air conditioning systems
- 200 Amp underground electrical service with 24KW whole house generator, and tesla garage charger setup.
- Custom closets in all bedroom closets including melamine cabinets in the master.
- Grill ready for rear patio gas unit.
- Alarm system ready – hardwired to all windows and doors and motion sensor locations
- Ample runs of CAT6, Coax, HDMI, and speaker wires throughout the house terminating to basement patch panels for TV’s, network interfaces, sonos audio, cameras and WiFi access points.
- Surround system pre-wired in family room.
Ready to learn more about this home or discuss your custom project? Contact us.






























































