930 Tice Place, Westfield
Instant Equity Program
This 7 bedroom, 7 bathroom home with a full finished basement and attic on Tice Place in Westfield!
Completed June 2024!
Visit our Instant Equity page to learn how we save our clients money on custom homes.
Click on any image below to explore this home—or scroll down for a description of the exterior, interior and finishing details.
SPECIFIC DETAILS INCLUDE THE FOLLOWING:
EXTERIOR:
- .425 acre Lot located on Tice Place – central location with walking distance to grammar, middle and Westfield high schools.
- A maintenance-free exterior with Arctic White Hardie Plank Siding throughout the entire house, stone veneer, and Azek trim
- GAF Timberline HD Lifetime Warranty Roof and aluminum roof over rear porch
- Custom front entryway with glass sidelights
- Oversized 2 car garage with raised panel style garage door
- Paved driveway with Belgium block curbing
- 400 Series Anderson windows/screens with a French door leading to the oversized rear bluestone covered patio
- Bluestone front porch, paver front and side/rear walkways & rear paver patio
- Professionally landscaped yard with sod and irrigation system covering entire yard with rain sensor
- Window well drainage ties with perimeter and french drainage systems. Over sized 6″ gutters.
INTERIOR:
- 7 bedrooms, 6 full bathrooms, 2 half bathrooms
- Over 7,000 square feet of finished living space on 4 levels
- 10′ ceilings in the basement and 9′ ceilings on the first floor
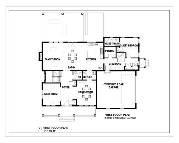
- First floor Au Pair bedroom with full bathroom; large Kitchen and Family room with fireplace. Elegant living room. Dining room with butler’s pantry
- Second floor includes four bedrooms and four full bathrooms – one for each bedroom.
- Master bedroom suite includes up-lit trey ceiling, 2 walk in closets and an office
- Master bath includes a double sink Bertch vanity with stone counter tops.
- Kohler fixtures for all sinks, showers and tubs and Toto toilets throughout
- Elegant walk-in master steam shower with hand held and frame-less shower door enclosure.
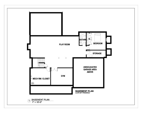
- Fully finished basement with a full bathroom, bedroom, gym room, gaming area and a storage/mechanical room.
- Stunning Master Kitchen with solid wood inset cabinets going up to the ceiling.
- Designer eat-in kitchen with a center island, stone counter tops, farm sink, Miele and Wolf stainless steel appliances, and a large pantry for storage
- Butler’s pantry with 2nd oven and sink
- Second Floor Laundry room for convenience with utility sink, stone counter tops, and barn door entryway
- Gas fireplace in the family room with LED accent lighting, brick refractory kit and remote control
FINISH DETAIL:
- Exquisite millwork including crown molding on the first floor and recessed panel boxes on the first floor and on all stairwells.
- Mudroom with cubbies with an oak bench seat, doors on uppers, and beadboard backing on the wall.
3 1/4″ select redwood hardwood floors with 3 coats of water based polyurethane on the first, second and attic levels; carpet and rubber gym flooring in the basement. - Gas fireplace with millwork and stone surround
- Generous lighting package in addition to ample recessed LED lights
- Raised panel solid core doors throughout
- Kohler and Toto fixtures and toilets and throughout
- Cast iron bathtubs in all bathrooms
- All bathrooms include Bertch vanities with quartz counter tops and matching stone sills/saddles/corner shelves
- 5 Zone gas fired forced air heating & air conditioning system with 2 17 SEER and 1 14.5 SEER condensers and a steam humidifier.
- Steel construction to minimize basement columns.
- 300 Amp underground electrical service with a transfer switch and 24KW whole house generator.
- Custom melamine closets in all bedroom closets and pantry.
- Grill ready for rear patio gas unit
- Alarm system installed- hardwired to all windows and doors, motion sensor locations, and keypads
- Ample runs of CAT6 and Coax throughout the house terminating to basement utility room. HDMI setups in the living room. Future speaker, Wifi access point and camera runs included as well.
- 1/2 HP garbage disposal in kitchen sink
- Surround system pre-wired in family room.
- LED under cabinet lighting in the Kitchen and Butler’s pantry
- Instant Hot water circulating loop piping installed with aquastat and pump
Ready to learn more or discuss your project? Contact us.



































































