46 Mohawk Trail, Westfield
Completed
A beautiful 6 bedroom, 6 full/1 half bathroom Colonial surrounded by newer homes on the street with close walking distance to Jefferson elementary, Edison middle and Westfield high schools. Completed June 2023.
Contact us for more information.
Visit our Instant Equity page to learn how we save our clients money on custom homes.
Click on any image below to explore this home—or scroll down for a description of the exterior, interior and finishing details.
SPECIFIC DETAILS INCLUDE THE FOLLOWING:
EXTERIOR:
- A .322 Acre Lot located on Mohawk Trail
- A maintenance-free exterior with Hardie Plank Cedarmill Lap siding as well as board and batten strip siding. Azek Trim with painted brick accents.
- Timberline Lifetime Warranty Roof and standing seam aluminum roof over the front porch with white oak soffits under all porches.
- 2 car garage with carriage style overlay garage door with entrance to mudroom
- Paved driveway with Belgium block curbing
- Andersen 400 Series windows/screens with a pair of french doors leading to the rear covered and uncovered patio.
- Blue stone front porch, rear covered porch and side mudroom walkout. Paver front walkway, side walkway, and rear patio with masonry kitchen setup and wood burning fire pit.
- Custom front wood entryway door with glass sidelights.
- Professionally landscaped yard with sod and irrigation system for the entire yard
- Window well drainage ties with a perimeter and french drainage system.
INTERIOR:
- 6 bedrooms, 6 full bathrooms, 1 half bathrooms
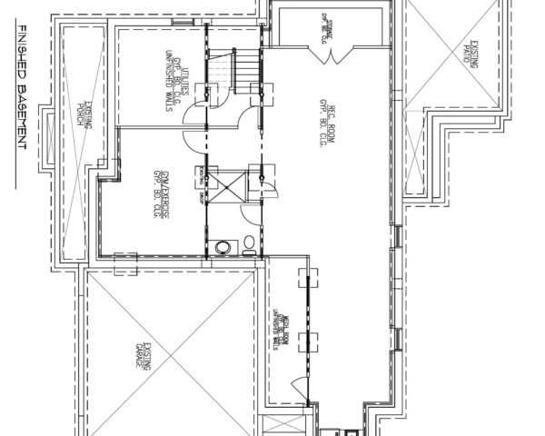
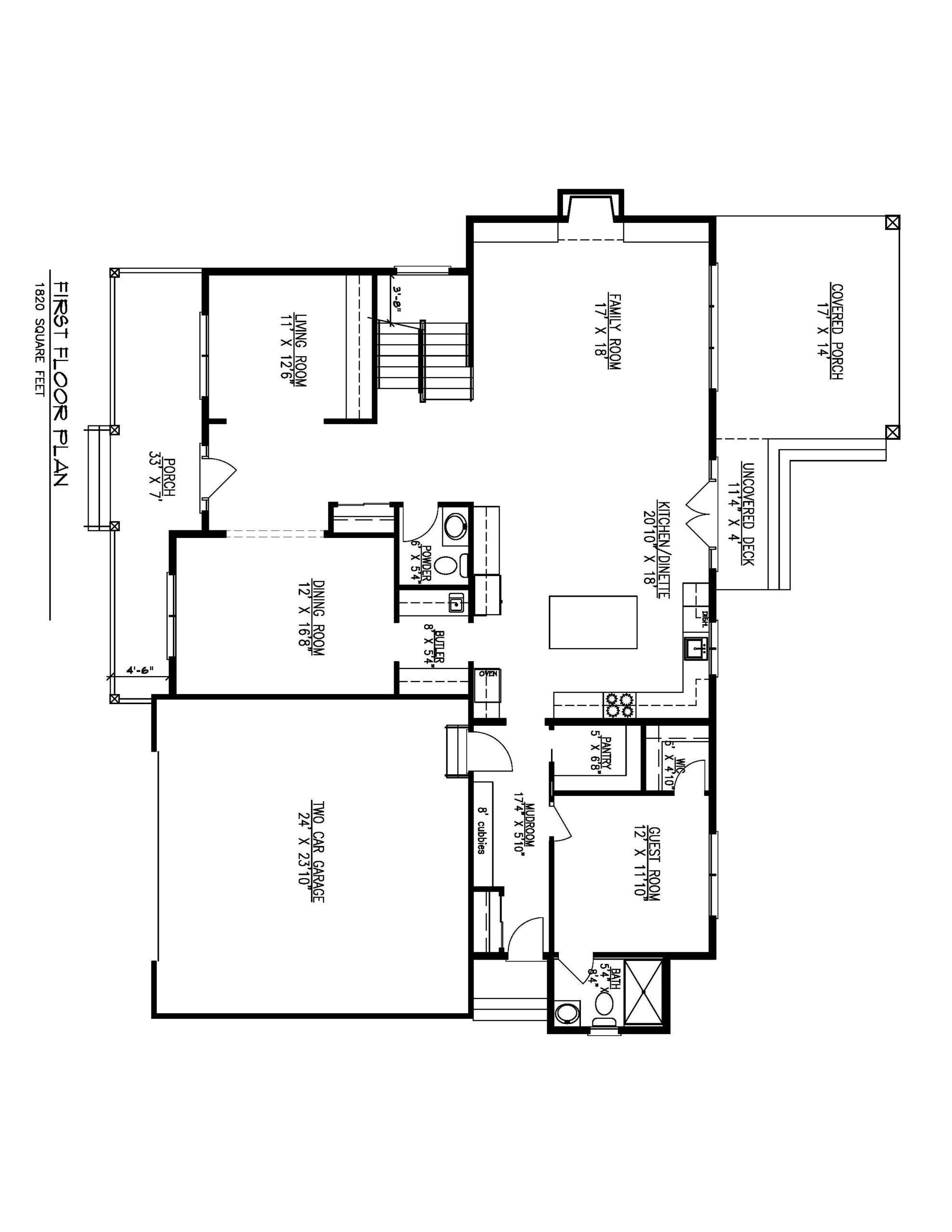
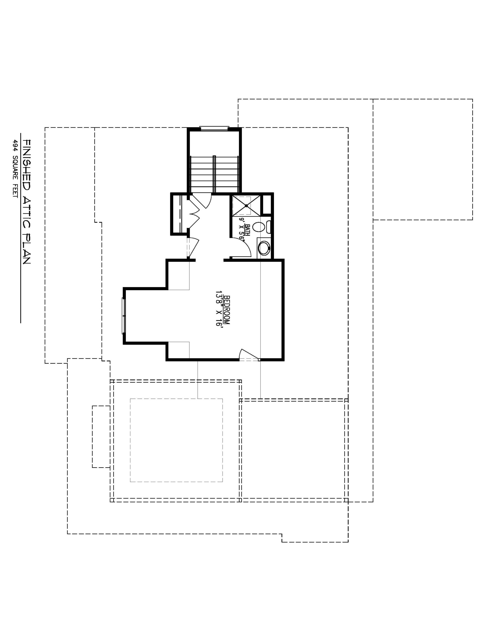
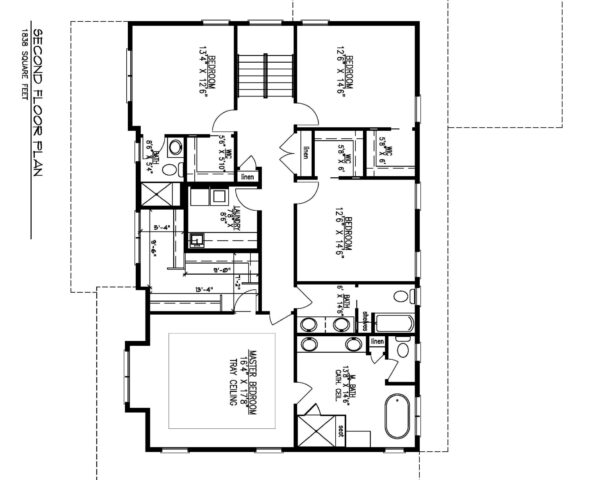
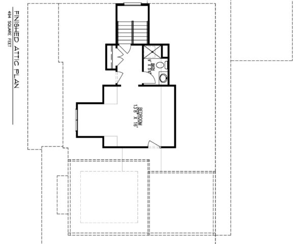
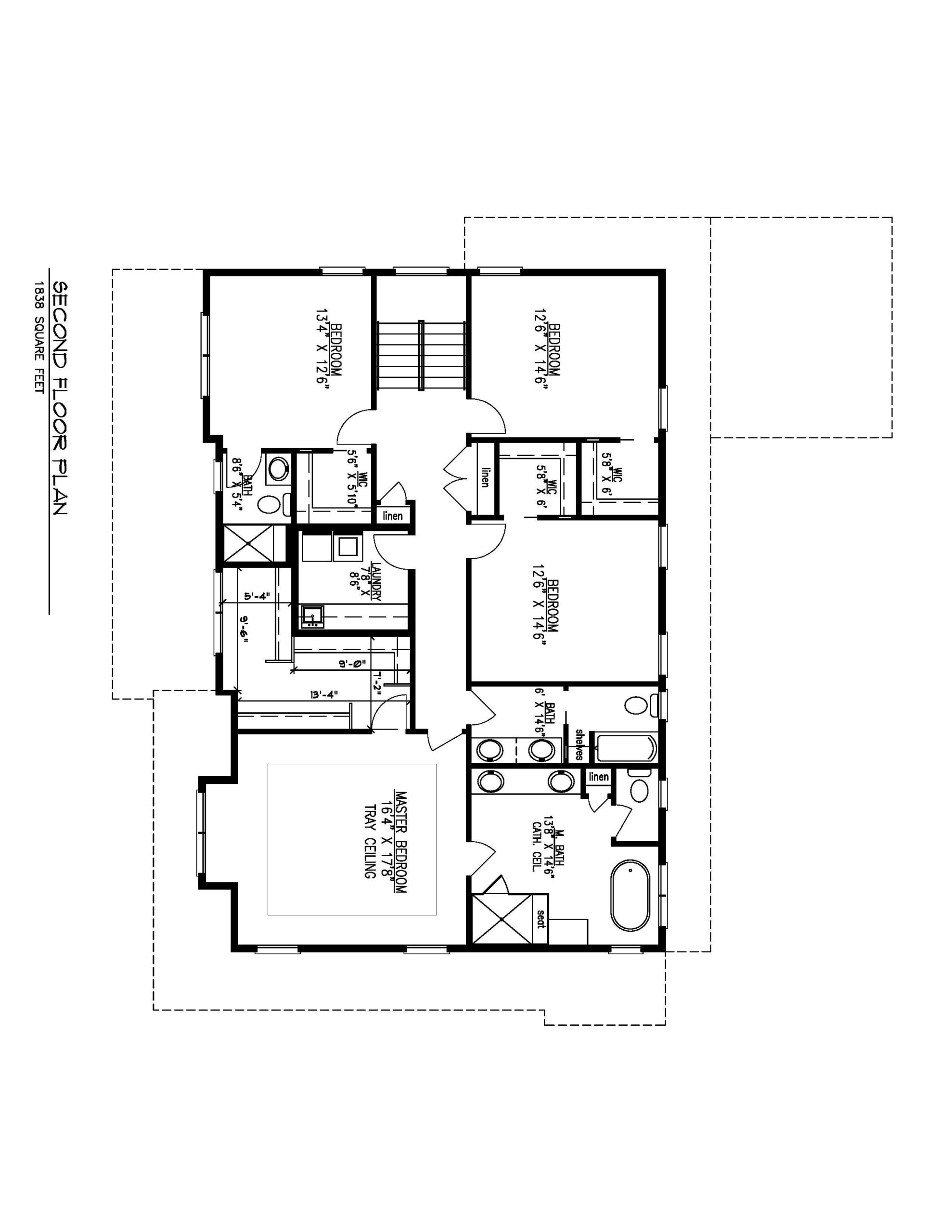
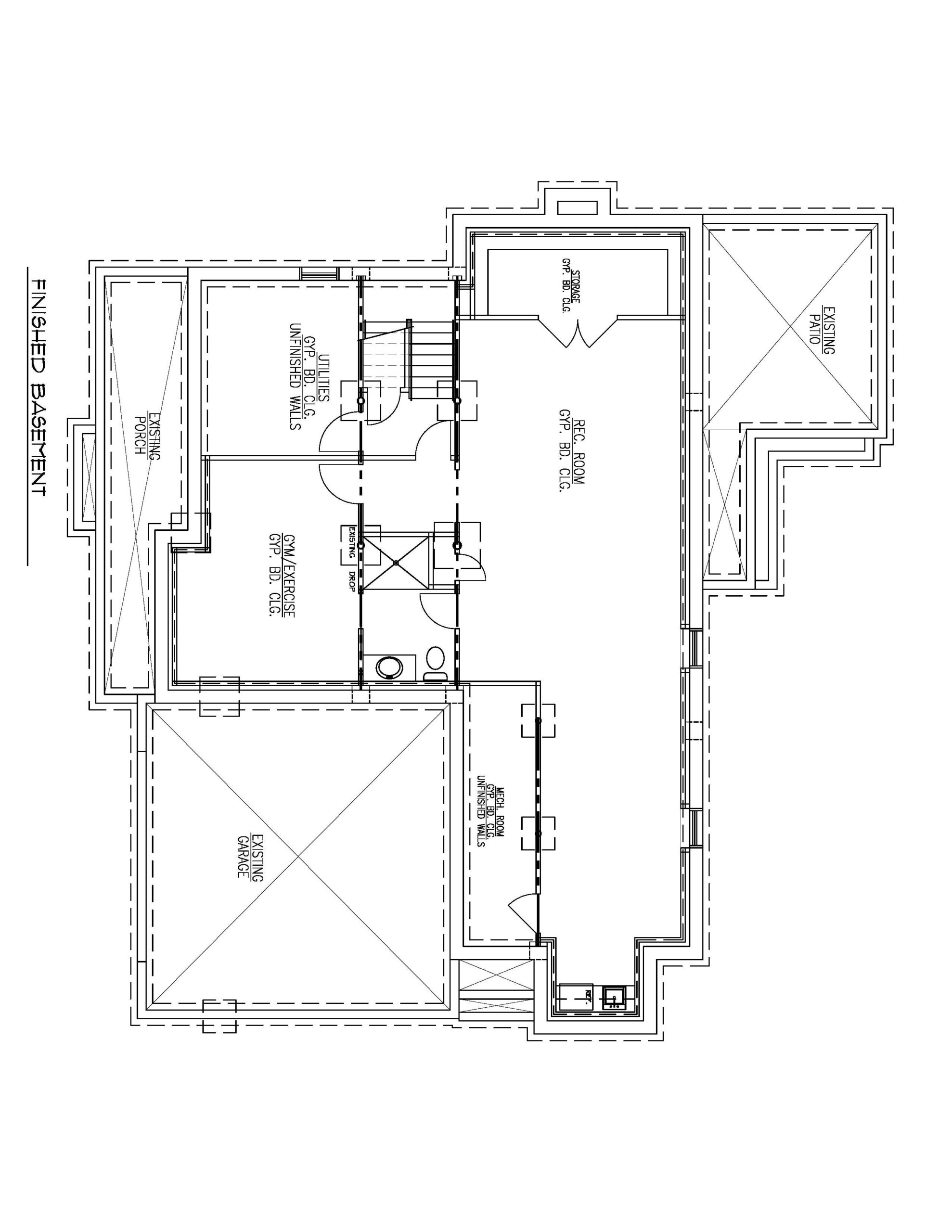
- Over 5,700 square feet of finished living space on 4 finished levels
- 9′ ceilings on the first floor and finished basement levels
- First floor contains a large Kitchen with butler’s pantry, and a family room with a fireplace. Elegant dining room as well as a mudroom off of the garage with a set of built in cubbies.
- Living room custom built in cabinetry with 2 refrigeration appliances for entertaining.
- Designer eat-in kitchen with a large center island, stone counter tops, under mount stainless steel sink, pot filler, stainless steel appliances, and a pantry for storage.
- Wolf, Miele and Sub Zero appliances including a 48″ refrigerator, 36″ professional range, wall oven, dishwasher, beverage center, wine refrigerator, refrigerated drawer unit, hood and drawer microwave.
- Second floor includes four bedrooms and three full bathrooms including a hall bathroom and an ensuite bathroom.
- Second Floor laundry room with stone countertops and sink
- Master bedroom suite includes up-lit trey ceiling and a large walk in closet.
- Master bath includes custom cabinetry with stone counter tops, kohler fixtures and toilet, tub, an elegant walk-in shower with hand shower, stone bench seat, and a custom panel frame-less shower door enclosure
- Fully finished basement with a gym room, a kitchenette area, and a full bathroom with a steam shower. Ceilings are drywalled and vinyl plank Coretec flooring is installed in the common area and rubber matt flooring in the gym room.
FINISH DETAIL:
- Exquisite millwork including crown molding and 1×4″ panel boxes on the first floor mudroom, foyer and dining room, up the stairs, and into the second floor hall areas and all staircase areas.
- Gas fireplace with custom mill work, stone surround, and brick finishing in the family room.
- Custom built ins around the fireplace in the family room as well as in the living room.
- 3 1/4″ select grade white oak hardwood floors stained with 4 coats of water based polyurethane/finish on the first floor, second floor, and attic. Herringbone installation in the living room.
- Generous lighting package in addition to an ample amount of recessed lights.
- Solid core shaker style doors installed throughout the house
- All bathrooms except for the master and power include Bertch vanities with stone counter tops
- 4 Zone gas fired forced air heating and air conditioning system with 2 stage furnaces and high efficiency 14 and 17 SEER condensers and steam humidifier.
- 200 Amp electrical service with transfer switch and 24KW Generac entire house generator.
- Spray foamed garage ceiling an sound deadening around laundry room walls.
- Melamine closets in all bedrooms on the second floor as well as the pantry. Custom built closets in all other closets.
- Radiant heat floor in the master bathroom.
- Ceiling mounted rear porch heaters on the rear covered patio.
- Rear kitchen dinette setup on paver patio with gas grill and stone countertops.
- Instant hot unit installed under the kitchen sink.
- Ample runs of CAT6 and Coax throughout the house for TV/speakers/alarm/wireless access points, etc.
- Aquastat and pump for instant hot water throughout the house.
- Surround system pre-wired in family room
- Electric car ready with 50A lines run to garage for easy connection.
Ready to learn more about this home or discuss your custom project? Contact us.



























































