23 Skyline Drive, Warren
Private Build in Warren, NJ
This colonial boasts 5 bedrooms, 7 bathrooms on a 1.5+ acre lot on top of beautiful Skyline Drive in Warren. Completed in December 2017!
Visit our Instant Equity page to learn how we save our clients money on custom homes.
Click on any image below to explore this home—or scroll down for a description of the exterior, interior and finishing details.
SPECIFIC DETAILS INCLUDE THE FOLLOWING:
EXTERIOR:
- 1.57 Acre Lot located on beautiful Skyline Drive
- A maintenance-free exterior with Gray Slate Hardie Plank Siding, Stone Veneer, Azek Trim and Timbertech PVC Handrails
- GAF Timberline HD Lifetime Warranty Roof
- Custom front entryway with solid mahogany door
- 3 car garage with carriage house style garage doors
- Paved driveway
- 400 Series Anderson windows/screens with a pair of french doors to the rear patio
- Blue stone front porch, paver front walkway and rear paver patio
- Window well drainage ties with perimeter and french drainage systems. Over sized 6″ gutters.
INTERIOR:
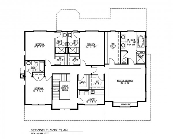
- 5 bedrooms, 5 full bathrooms, 2 half bathrooms
- Over 6,000 square feet of finished living space on 3 levels. Attic prepared for ease of future finishing
- 9′ ceilings on the first floor, second floor and finished basement levels
- First floor Au Pair bedroom with full bathroom; large Kitchen and Family room and double sided fireplace. Elegant living room. Dining room with butler’s pantry
- Second floor includes four bedrooms and four full bathrooms.
- Master bedroom suite includes up-lit trey ceiling, a large walk in closet and window bench seating
- Master bath includes a double sink Bertch vanity with stone counter tops, Kohler fixtures and toilet, cast iron soaking tub, and elegant walk-in shower with hand held and frame-less shower door enclosure
- Fully finished open area basement with drywall ceiling, carpeted floor and half bathroom
- Stunning Master Kitchen with Ultracraft cabinetry
- Designer eat-in kitchen with a center island, stone counter tops, under mount stainless steel kitchen sink, Jenn Air stainless steel appliances, and a large pantry for storage
- Stainless steel appliances include refrigerator, dishwasher, 6 burner professional wolf range, oven, microwave and a beverage center
Butler’s pantry with stainless steel sink and beverage center - Second Floor Laundry room for convenience with utility sink and stone counter tops
- Double sided gas fireplace in the family room with LED accent lighting, brick refractory kit and remote control
FINISH DETAIL:
- Exquisite millwork including double crown molding and wainscot molding and chair rail throughout the first floor, up the stairs and in second floor hallway. Coffer ceilings in the dining room and family room
- Mudroom with cubbies with a stained oak bench seat
- 3 1/4″ select redwood hardwood floors stained with 3 coats of polyurethane on the first and second floors; carpet in basement
- Gas fireplace with custom mantle, custom millwork, and stone surround in the family room
- Generous lighting package in addition to ample recessed LED lights
- Raised panel solid core doors throughout
- Kohler toilets and fixtures throughout
- Cast iron bathtubs in all bathrooms
- All bathrooms include Bertch vanities with stone counter tops and matching stone sills/saddles/corner shelves
- 2 Zone gas fired forced air heating & air conditioning system with 18 SEER AND 14.5 SEER condensers
- Steel construction to minimize basement columns
- 200 Amp electrical service
- Custom closets in all bedroom closets
- Generator ready for full house gas unit
- Frameless and semi-frameless shower doors in all showers
- Grill ready for rear patio gas unit
- Alarm system pre wire installed- hardwired to all windows and doors, motion sensor locations, and keypads
- 8 tri-runs of CAT5E/CAT5E/Coax throughout the house terminating to basement patch panels. HDMI setups in master bedroom and living room.
- 1/2 HP garbage disposal in kitchen sink
- Surround system pre-wired in family room
- LED under cabinet in the Kitchen and Butler’s pantry
- Instant Hot water circulating loop piping installed with aquastat and pump
Ready to learn more or discuss your project? Contact us.








































