1260 Prospect Street, Westfield
Recently Completed
This colonial boasts 5 bedrooms, 7 bathrooms with a full finished basement on 1.2 acres in the desirable Indian Forest section of Westfield. Completed August 2019!
Visit our Instant Equity page to learn how we save our clients money on custom homes.
Click on any image below to explore this home—or scroll down for a description of the exterior, interior and finishing details.
SPECIFIC DETAILS INCLUDE THE FOLLOWING:
EXTERIOR:
- A 1.2 acre secluded lot located in the Indian Forest section of Westfield
- A fully maintenance-free exterior with Cedar Shake Siding, Stone Veneer, Azek Trim, and blue stone masonry porches.
- Timberline Lifetime Warranty Roof
- Custom front door entryway with sidelights
- 3 car garage with carriage house style garage doors
- Paved driveway with Belgium block curbing and Cambridge paver walls
- Andersen 400 series windows/screens with a pair of french doors from the dinette to the rear patio and from the basement walkout up to grade
- Blue stone front porch and large covered blue stone patio in the rear
- Walkways down to lower terrace area with real wood burning fireplace
- Professionally landscaped yard with sod and irrigation system
- Window well drainage ties with perimeter and french drainage systems that drain to daylight for no worry basement water issues. Over sized gutters.
INTERIOR:
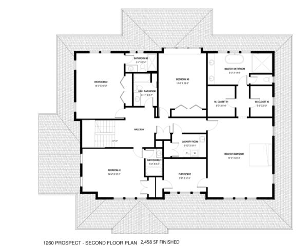
- 5 bedrooms, 6 full bathrooms, 1 half bathroom
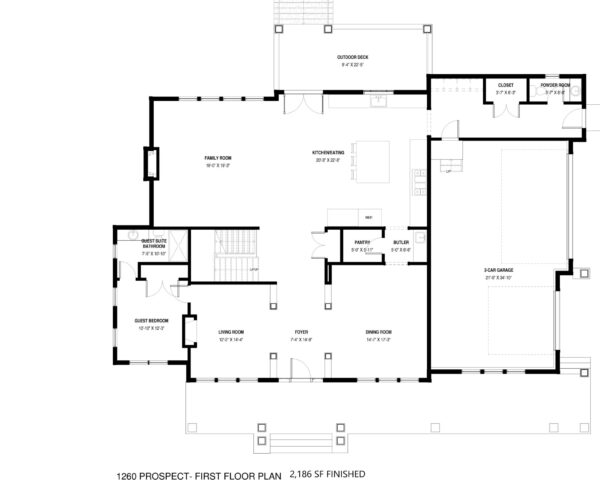
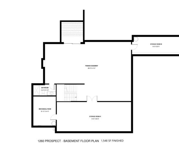
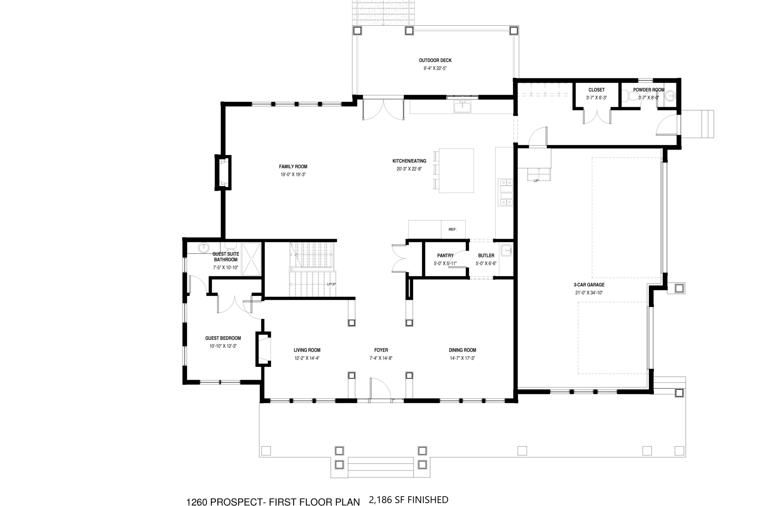
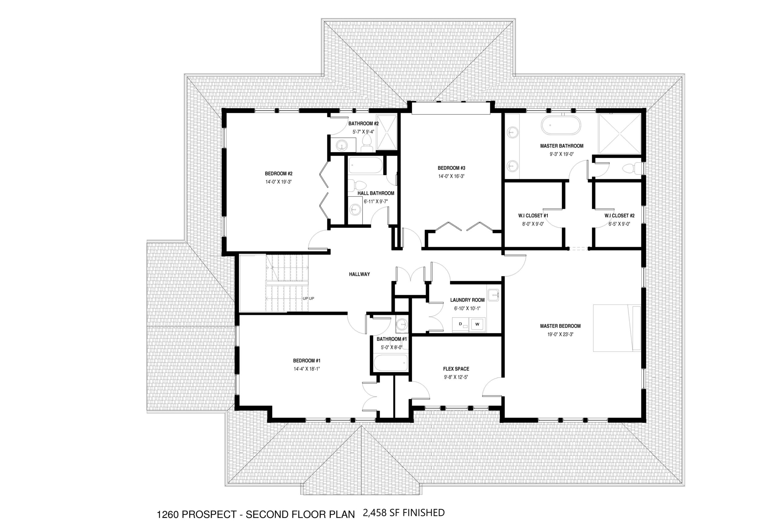
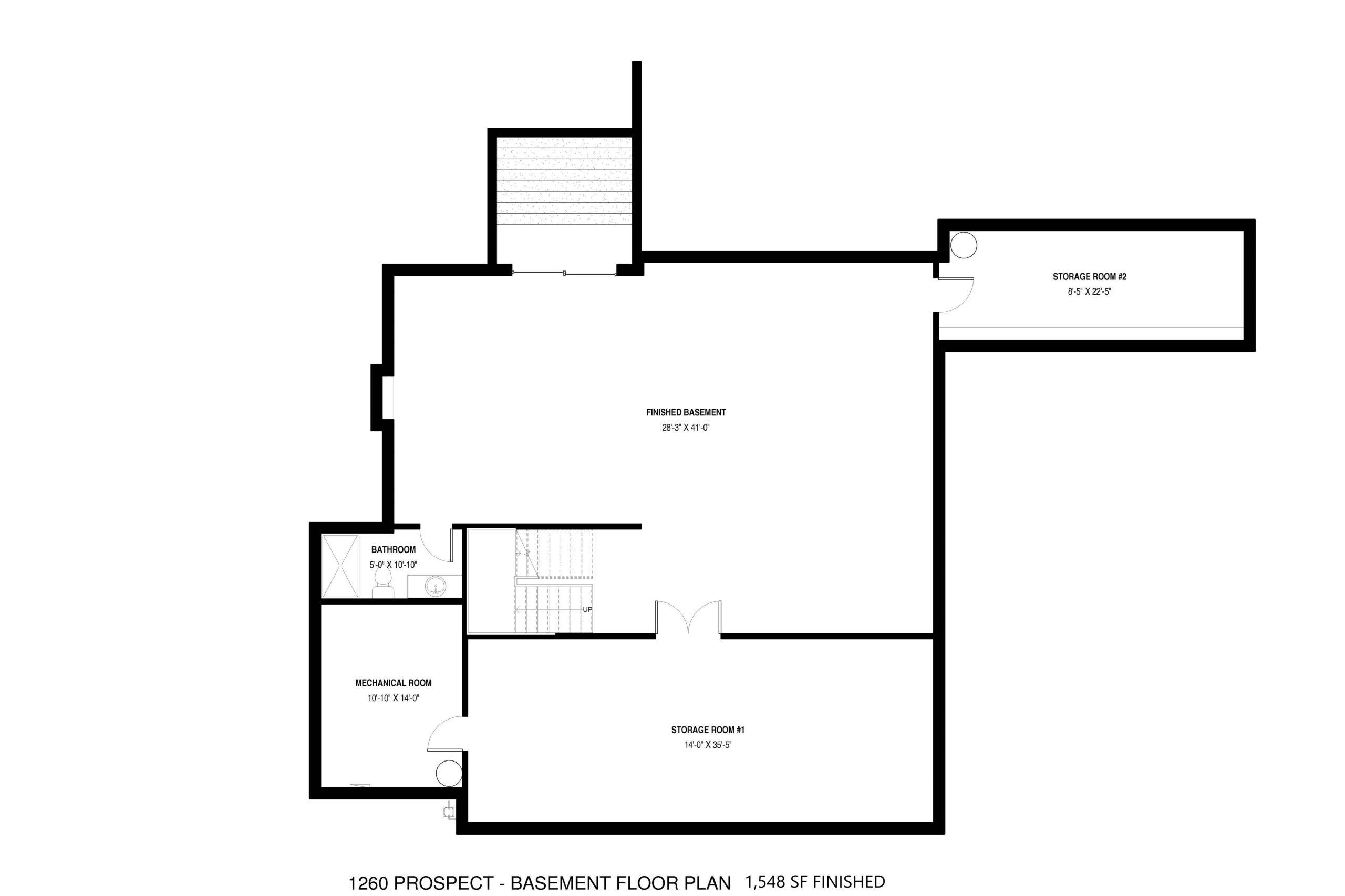
- Over 6,400 square feet of finished living space on 3 levels (future attic planned out with full bath and bedroom)
- 10′ ceilings on the first floor and finished basement levels and 9′ on second floor level
- First floor Au Pair bedroom with full bathroom; large Kitchen and Family room with fireplace.
- Elegant living room with gas fire place. Dining room with butler’s pantry
- Second floor includes four bedrooms and four full bathrooms.
- Master bedroom suite includes up-lit trey ceiling, and two walk in closets.
- Master bath includes his and hers vanities with stone counter tops, stand alone claw foot tub, and elegant walk-in shower with body sprays and frame less shower door enclosure
- Fully finished open area basement with drywall ceiling, carpeted floor and full bathroom and over sized gym room.
- Designer eat-in kitchen with a center island, marble counter tops, farm sink, Wolf/Subzero stainless steel appliances, and large pantry for storage
- Butler’s pantry with wine cooler/refrigerator and sink
- Second Floor Laundry room for convenience with utility sink
- 2 Gas fireplaces—one in the family room and one in the living room.
FINISH DETAIL:
- Exquisite millwork including double crown molding and wainscot molding and chair rail throughout the first floor, coffered ceiling in the family room, and applied molding panel boxes in the dining room
- 8″ select white oak hardwood floors with herringbone pattern in the foyer, dining room, and living room with 3 coats of water based polyurethane on the first and second floor halls; carpet in the basement and second floor bedrooms
- 2 Gas fireplaces with custom mantles, custom millwork, and stone surrounds in the family room and living room.
- Generous lighting package in addition to 100+ recessed lights
- Raised panel solid core doors throughout including 8′ height on the 1st floor
- All other bathrooms include vanities with stone counter tops
- 3 Zone gas fired forced air heating & air conditioning system with 2 stage furnaces on each unit and 14.5 through 18 SEER Condensers
- 200 Amp electrical service and whole house 22KW generator
- Custom melamine closets in all closets
- Grill ready for rear patio gas unit
- Alarm system installed- hardwired to all windows and doors, motion sensor locations, and keypads
- 9 tri-runs of CAT6/CAT6/Coax throughout the house terminating to basement patch panels. HDMI setups in master bedroom and living room.
- Camera system installed throughout.
- Surround system pre-wired in family room and master bedroom
- LED under cabinet and in cabinet lighting in the Kitchen and Butler’s pantry
- Instant Hot water circulating loop piping installed
Ready to learn more or discuss your project? Contact us.
















































