843 Nancy Way, Westfield
Custom Home with our Instant Equity Program
This colonial boasts 5 bedrooms, 6 bathrooms with a full finished basement in one of the most beautiful areas in Westfield. Completed in August 2017!
Visit our Instant Equity page to learn how we save our clients money on custom homes.
Click on any image below to explore this home—or scroll down for a description of the exterior, interior and finishing details.
SPECIFIC DETAILS INCLUDE THE FOLLOWING:
EXTERIOR:
- 90×150 Lot located on beautiful Nancy Way
- A maintenance-free exterior with Aged Pewter Hardie Plank Siding, Stone Veneer, Azek Trim and Timbertech PVC Handrails
- GAF Timberline HD Lifetime Warranty Roof
- Custom front entryway with solid mahogany door
- 2 car garage with carriage house style garage doors
- Paved driveway with Belgium block curbing
- 400 Series Anderson windows/screens with a pair of french doors to the rear patio
- Blue stone front porch, paver front walkway and a 15×20 rear paver patio with fire pit
- Professionally landscaped yard with sod and irrigation system covering entire yard with rain sensor
- Window well drainage ties with perimeter and french drainage systems. Over sized 6″ gutters.
- PVC fence around entire rear yard
INTERIOR:
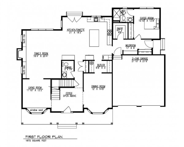
- 5 bedrooms, 4 full bathrooms, 2 half bathrooms
- Over 5,600 square feet of finished living space on 3 levels. Attic prepared for ease of future finishing
- 9′ ceilings on the first floor and finished basement levels
- First floor Au Pair bedroom with full bathroom; large Kitchen and Family room with fireplace. Elegant living room. Dining room with butler’s pantry
- Second floor includes four bedrooms and three full bathrooms including a Jack and Jill.
- Master bedroom suite includes up-lit trey ceiling, a large walk in closet and a fireplace
- Master bath includes a double sink Bertch vanity with stone counter tops, Kohler fixtures and toilet, cast iron soaking tub, and elegant walk-in shower with hand held and frame-less shower door enclosure
- Fully finished open area basement with drywall ceiling, carpeted floor and half bathroom
- Stunning Master Kitchen with solid wood Conestoga cabinets
- Designer eat-in kitchen with a center island, quartz counter tops with farm house sink, Jenn Air stainless steel appliances, and a large pantry for storage
- Jenn Air appliances include 42″ built in refrigerator, dishwasher, 6 burner professional range, oven, microwave and a beverage center
- Butler’s pantry with beverage center
- Second Floor Laundry room for convenience with utility sink and stone counter tops
- 2 Gas fireplaces – one in the family room and one in the master bedroom suite with LED accent lighting, brick refractory kits and remote controls
FINISH DETAIL:
- Exquisite millwork including double crown molding and wainscot molding and chair rail throughout the first floor, up the stairs and in second floor hallway.
- Coffer ceilings in the dining room and family room
- Mudroom with cubbies with a stained oak bench seat
- 3 1/4″ select redwood hardwood floors stained with 3 coats of polyurethane on the first and second floors; carpet in basement
- 2 Gas fireplaces with custom mantles, custom millwork, and stone surrounds in the master bedroom & family room
- Generous lighting package in addition to ample recessed LED lights
- Raised panel solid core doors throughout
- Kohler toilets and fixtures throughout
- Cast iron bathtubs in all bathrooms
- All bathrooms include Bertch vanities with stone counter tops and matching stone sills/saddles/corner shelves
- 2 Zone gas fired forced air heating & air conditioning system with 18 SEER AND 14.5 SEER condensers
- Steel construction to minimize basement columns
- 200 Amp electrical service
- Custom MDF closets in all bedrooms and custom melamine closet in the master bedroom
- Generator ready for full house gas unit
- Frameless shower doors in all showers
- Grill ready for rear patio gas unit
- Alarm system installed- hardwired to all windows and doors, motion sensor locations, and keypads
- 9 tri-runs of CAT5E/CAT5E/Coax throughout the house terminating to basement patch panels. HDMI setups in master bedroom and living room.
- 1/2 HP garbage disposal in kitchen sink
- Surround system pre-wired in family room and master bedroom
- LED under cabinet and in cabinet puck lighting in the Kitchen and Butler’s pantry
- Instant Hot water circulating loop with aquastat and pump for instant hot water
- Sump pump water backup system
Ready to learn more or discuss your project? Contact us.































