624 Green Briar Court, Westfield
Instant Equity Program
A beautiful 6 bedroom, 5 full/1 half bathroom modern style home surrounded by newer homes on a cul-de-sac street with close walking distance to Jefferson elementary, Edison middle and Westfield high school. Completed April 2025!
Contact us for more information.
Visit our Instant Equity page to learn how we save our clients money on custom homes.
Click on any image below to explore this home—or scroll down for a description of the exterior, interior and finishing details.
SPECIFIC DETAILS INCLUDE THE FOLLOWING:
EXTERIOR:
- 70 x 130 Lot located on Green Briar Court
- A maintenance-free exterior with painted brick on the front of the house and arctic white smooth straight board siding on the left, right and rear sides of the house.
- Timberline HDZ Lifetime Warranty Roof
- Generous Azek trim package in black and white to accent.
- 2 car garage with carriage style garage door with entrance to mudroom
- Paved driveway with Belgium block curbing
- Andersen 400 windows/screens with a 16′ wide 4 panel door in the family room leading out to the rear porch.
- Masonry blue stone front and rear porches.
- Paver front, side and rear walkways as well as a large rear patio.
- Custom 8’0″ front door with side lights
- Professionally landscaped yard with sod and irrigation system for entire yard
- Window well drainage ties with perimeter and french drainage system for guaranteed dry basement
INTERIOR:
- 6 bedrooms, 5 full bathrooms, 1 half bathroom
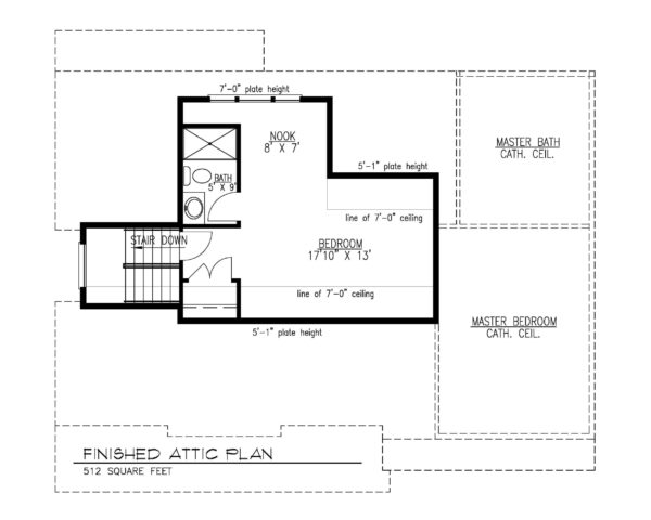
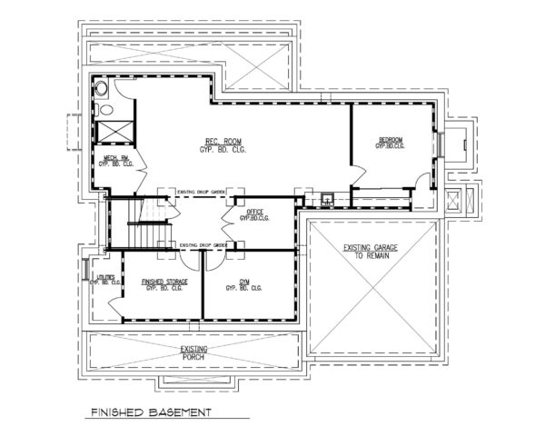
- Approximately 5,000 square feet of finished living space on 4 finished levels
- 9′ ceilings on the first floor and finished basement levels
- First floor contains a large Kitchen and Family room with a fireplace. Elegant dining room and office as well as a mudroom off of the garage
- Second floor includes four bedrooms and three full bathrooms including a jack and jill bathroom and an ensuite bathroom.
- Master bedroom suite includes a cathedral ceiling and a large walk in closet
- Master bath includes a double sink Bertch vanity with stone counter tops, kohler fixtures and toilet, tub, an elegant walk-in shower with hand shower, stone bench seat, and a frame-less shower door enclosure
- Fully finished basement for recreation with drywall ceiling, vinyl & carpet floor, full bedroom, office, gym and full bathroom.
- Designer eat-in kitchen with a large center island, stone counter tops, under mount stainless steel sink, stainless steel appliances, and a pantry for storage.
- Jenn Air stainless steel appliance package including a 48″ refrigerator, 36″ professional range, dishwasher, hood and microwave.
- Second Floor Laundry room with sink
- Gas fireplace in the family room
FINISH DETAIL:
- Exquisite millwork including 1×4 flat casings and crown molding on the first floor and second floor hallway.
- Chair rail with applied molding trim boxes installed in the living room on one accent wall, the stairwells, and in the hall on the second floor.
- Gas fireplace with custom mantle, custom mill work, and stone surround in the family room
- 3 1/4″ select grade red oak hardwood floors with 3 coats of water based polyurethane on the first, second and attic levels with carpet/vinyl flooring in the basement.
- Generous lighting package in addition to an ample amount of recessed lights
- Solid style and rail doors throughout the house with 8′ height on the first floor.
- All bathrooms include Bertch vanities with stone counter tops
- 4 Zone gas fired forced air heating and air conditioning system with 2 stage furnaces and high efficiency condensers (14.5 and 17 SEER)
- 200 Amp electrical service with generator transfer switch for future generator
- Custom built closets in all bedrooms
- Gas grill stub out ready for rear patio unit
- Generator prepared for future setup with gas stub out supply, conduits for electrical runs and stone pad.
- Ample tri-runs of CAT6/CAT6/Coax throughout the house terminating to basement patch panels. HDMI setups in master bedroom and family room.
- Wired for PoE cameras in exterior soffits.
- Surround system pre-wired in family room.
- Alarm system pre-wired on all accessible windows and doors
Ready to learn more about this home or discuss your custom project? Contact us.

















































