15 Tamaques Way, Westfield
Instant Equity Program
A beautiful 5 bedroom, 6 full/1 half bathroom Colonial in desirable Tamaques School location. Completed February 2023!
Contact us for more information.
Visit our Instant Equity page to learn how we save our clients money on custom homes.
Click on any image below to explore this home—or scroll down for a description of the exterior, interior and finishing details.
SPECIFIC DETAILS INCLUDE THE FOLLOWING:
EXTERIOR:
- 1/3 acre Lot located on Tamaques Way.
- A fully maintenance-free exterior with Arctic White Hardie shakes and Cedarmill siding. Azek trim around all windows.
- Timberline Lifetime Warranty Roof
- Generous Azek trim package
- 2 car garage with carriage style garage door with entrance to mudroom
- Paved driveway with Belgium block curbing
- Andersen 400 Series windows/screens with a pair of french doors leading to the rear patio.
- Blue stone front porch and paver front walkway, side walkway and rear patio
- Custom front door with separated transoms and side lights
- Professionally landscaped yard with sod and irrigation system for entire yard
- Window well drainage ties with perimeter and french drainage systems
INTERIOR:
- 5 bedrooms, 6 full bathrooms, 1 half bathroom
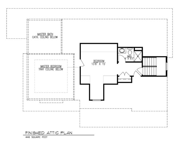
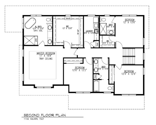
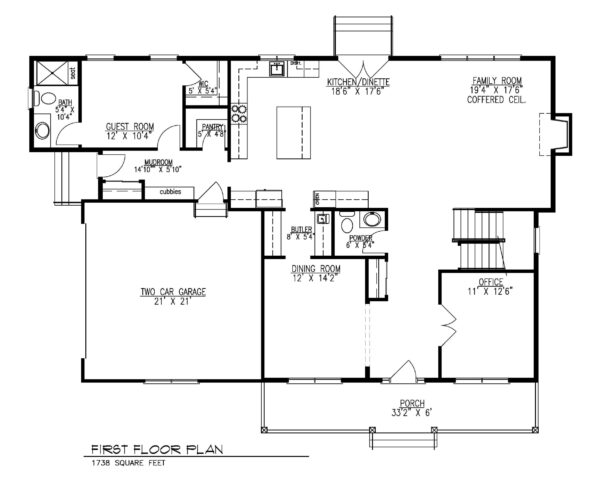
- Over 5,400 square feet of finished living space on 4 levels
- 9′ ceilings on the first floor and finished basement levels
- First floor contains a large Kitchen and Family room with a fireplace. Elegant living room and dining room as well as a mudroom off of the garage
- Second floor includes four bedrooms and three full bathrooms including a hall bathroom and an ensuite bathroom.
- Master bedroom suite includes up-lit trey ceiling and an oversized walk in closet.
- Master bath includes a double sink Bertch vanity with stone counter tops, Kohler fixtures and toilet, stand alone soaker tub, and an elegant walk-in shower with hand shower, rain head, stone bench seat, and a frame-less shower door enclosure
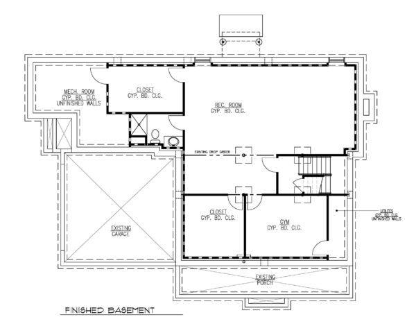
- Fully finished basement with a gym room, crafts room, and large recreational area in addition to an oversized finished storage closet and full bathroom.
- Designer eat-in kitchen with center island, stone counter tops, under mount stainless steel sink, stainless steel appliances, in cabinet and under cabinet lighting, and a pantry for storage
- Jenn Air stainless steel appliance package including a 48″ refrigerator, 36″ professional range, wall oven, dishwasher hood and microwave.
- Second Floor Laundry room with upper cabinetry and utility sink
- Gas fireplace in the family room
FINISH DETAIL:
- Exquisite millwork including crown molding and 1×4 applied molding and chair rail throughout the entire first floor, up the stairs, and into the second floor hall areas.
- Coffered ceiling in the family room and tray ceiling in the dining room.
- Gas fireplace with custom oak mantle and brick tile surround in the family room
- Built in book shelves/cabinets around family room fireplace
- Custom desk/built in in the 1st floor office
- 3 1/4″ select red oak hardwood floors with 3 coats of water based polyurethane on the first and second floors; carpet in basement common area and gym flooring in the gym room
- Generous lighting fixture package in addition to an ample amount of recessed lights
- Shaker style stile and rail solid doors throughout
- Kohler toilets and fixtures throughout
- All other bathrooms include Bertch vanities with stone counter tops
- 4 Zone gas fired forced air heating and air conditioning systems with built in steam humidifier
- 200 Amp electrical service
- Custom closets in all bedroom closets with melamine in the master
- Generac full house generator transfer switch installed in preparation for full house generator.
- Grill ready for rear patio gas unit
- Alarm system ready – hardwired to all windows and doors and motion sensor locations
- Fully wired for network, television, alarm, cameras, speakers and WiFi access points throughout the house terminating to basement patch panels.
- Surround system pre-wired in family room
Ready to learn more about this home or discuss your custom project? Contact us.




















































