633 Norwood Drive, Westfield
Private Build
A beautiful 7 bedroom, 6 full/1 half bathroom Colonial with close walking distance to Tamaques elementary, and in the districts of Edison middle and Westfield high schools. Coming November 2026!
Contact us for more information.
Visit our Instant Equity page to learn how we save our clients money on custom homes.
Click on any image below to explore this home—or scroll down for a description of the exterior, interior and finishing details.
SPECIFIC DETAILS INCLUDE THE FOLLOWING:
EXTERIOR:
- 64 x 128 Lot located on Norwood Drive
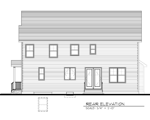
- A maintenance-free exterior with Hardie Plank Cedarmill Lap siding, Azek Trim and Azek Timbertech PVC Handrails
- Timberline Lifetime Warranty Roof
- Generous Azek trim package
- Single car garage with carriage style garage door with entrance to mudroom
- Paved driveway with Belgium block curbing
- Andersen windows/screens with a pair of french doors leading to the rear patio.
- Blue stone front porch and paver front walkway, side walkway, and rear patio
- Custom front door with side lights.
- Professionally landscaped yard with sod and irrigation system for entire yard
- Window well drainage ties with perimeter and french drainage systems
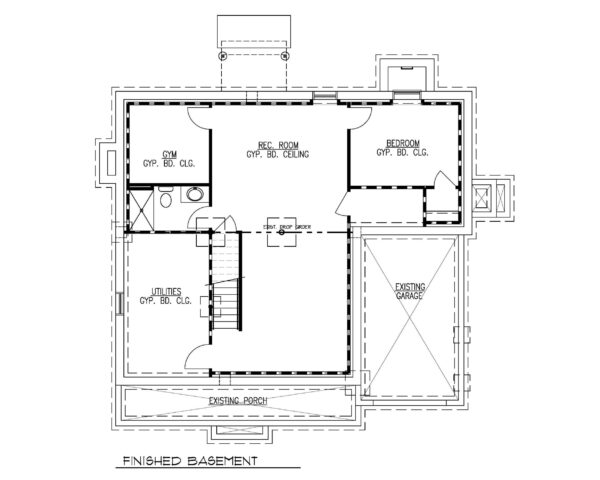
- Custom built steam room in the basement
INTERIOR:
- 7 bedrooms, 6 full bathrooms, 1 half bathroom
- Approximately 4,700 square feet of finished living space on 4 finished levels
- 9′ ceilings on the first floor and finished basement levels
- First floor contains a large kitchen with butler’s pantry, family room and guest bedroom room. Elegant dining room as well as a mudroom off of the garage
- Second floor includes four bedrooms and three full bathrooms including a hall bathroom and an ensuite bathroom.
- Master bedroom suite includes up-lit trey ceiling and a large walk in closet with custom melamine closets.
- Master bath includes heated floors with a double sink Bertch vanity with stone counter tops, kohler fixtures and toilet, tub, an elegant walk-in shower, stone bench seat, and a frame-less shower door enclosure.
- Fully finished basement for recreation with a drywall ceiling, gym room, full bedroom with egress window and large area for storage.
- Designer eat-in kitchen with a large center island, stone counter tops, under mount stainless steel sink, Thermador stainless steel appliances, and a pantry for storage
- Stainless steel appliance package including a 48″ refrigerator, 6 burner range, microwave drawer style setup, dishwasher, hood and beverage center.
- Second Floor Laundry room with sink and an additional laundry room setup in the first floor pantry
- Gas fireplace in the family room
FINISH DETAIL:
- Exquisite millwork including crown molding and recessed panel molding throughout the entire first floor, up the stairs and into the second floor hallway.
- Stained oak beams highlight the family room ceiling.
- Gas fireplace with custom oak mantle and brick tile surround in the family room
- Custom built ins around the fireplace in the family room.
- 3 1/4″ select grade red oak hardwood floors stained with 3 coats of water based polyurethane on the first, second and attic levels with carpeted flooring and rubber gym flooring in the basement
- Generous lighting package in addition to an ample amount of recessed lights
- Solid style and rail doors throughout the house with 8′ on the first floor
- All bathrooms include Bertch vanities with stone counter tops
- 4 Zone gas fired forced air heating and air conditioning system with 2 stage furnaces and high efficiency condensers (14.5 and 16 SEER)
- 200 Amp electrical service
- Custom built closets in all bedroom closets except for the master which is a custom melamine closet.
- Grill ready for rear patio gas unit
- 24KW Generac generator will be installed with load shedding smart switch.
- Ample sets of CAT6/CAT6/Coax throughout the house terminating to basement utility room for TV’s, Wifi access points, exterior cameras, etc. HDMI setup in family room.
- Surround system pre-wired in family room
- Alarm system pre-wired on all accessible windows and doors
Ready to learn more about this home or discuss your custom project? Contact us.









