23 Bell Drive, Westfield
Private Build
A beautiful 5 bedroom, 4 full/2 half bathroom Colonial with close walking distance to Jefferson elementary, and in the districts of Edison middle and Westfield high schools. Coming November 2026!
Contact us for more information.
Visit our Instant Equity page to learn how we save our clients money on custom homes.
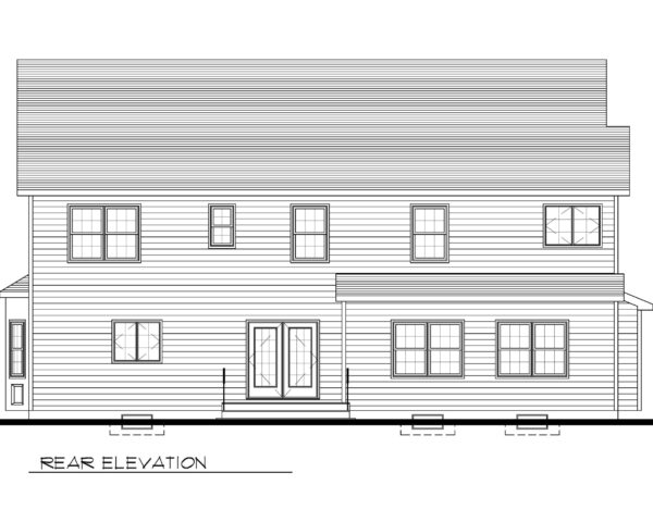
Click on any image below to explore this home—or scroll down for a description of the exterior, interior and finishing details.
SPECIFIC DETAILS INCLUDE THE FOLLOWING:
EXTERIOR:
- 91 x 114 Lot located on Bell Drive
- A maintenance-free exterior with Hardie Plank Shingle and Hardie Plank Cedarmill Lap siding, Azek Trim and Azek Timbertech PVC Handrails
- Timberline Lifetime Warranty Roof
- Generous Azek trim package
- 2 car garage with carriage style garage door with entrance to mudroom
- Paved driveway with Belgium block curbing
- Andersen windows/screens with a pair of french doors leading to the rear patio.
- Blue stone front porch and paver front walkway, side walkway, and rear patio
- Custom front door with side lights.
- Professionally landscaped yard with sod and irrigation system for entire yard
- Window well drainage ties with perimeter and french drainage systems
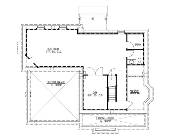
- Custom built steam room in the basement
INTERIOR:
- 5 bedrooms, 4 full bathrooms, 2 half bathrooms
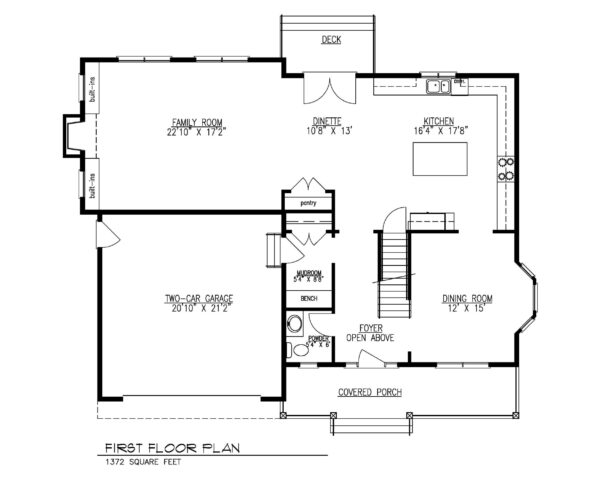
- Approximately 4,800 square feet of finished living space on 4 finished levels
- 9′ ceilings on the first floor and finished basement levels
- First floor contains a large Kitchen and Family room with a fireplace. Elegant dining room as well as a mudroom off of the garage
- Second floor includes four bedrooms and three full bathrooms including a hall bathroom and an ensuite bathroom.
- Master bedroom suite includes up-lit trey ceiling and a large walk in closet
- Master bath includes a double sink Bertch vanity with stone counter tops, kohler fixtures and toilet, tub, an elegant walk-in shower with steam generator as well as a hand shower, stone bench seat, and a frame-less shower door enclosure. And lets not forget, heated tile floor!
- Fully finished basement for recreation with a drywall ceiling and carpeted floor. A gym room, open large recreation room and a steam room complete the layout.
- Designer eat-in kitchen with a large center island, stone counter tops, under mount stainless steel sink, stainless steel appliances, and a pantry for storage
- Stainless steel appliance package including a 48″ refrigerator, 36″ induction cooktop, 30″ double oven, dishwasher, hood and microwave.
- Second Floor Laundry room with sink
- Gas fireplace in the family room
FINISH DETAIL:
- Exquisite millwork including crown molding and recessed panel molding throughout the entire first floor, up the stairs and into the second floor hallway.
- Coffered 9 box ceiling in the family room
- Gas fireplace with custom mantle, custom mill work, and stone surround in the family room
- Custom built ins around the fireplace in the family room.
- 4″ select grade red oak hardwood floors stained with 3 coats of polyurethane on the first, second and attic levels with carpeted flooring in the basement
- Generous lighting package in addition to an ample amount of recessed lights
- Solid style and rail doors throughout the house with 8′ on the first floor
- All bathrooms include Bertch vanities with stone counter tops
- 4 Zone gas fired forced air heating and air conditioning system with 2 stage furnaces and high efficiency condensers (14.5 and 16 SEER)
- 200 Amp electrical service
- Custom built closets in all bedroom closets except for the master which is a custom melamine closet.
- Grill ready for rear patio gas unit
- 24KW Generac generator will be installed with load shedding smart switch.
- Ample sets of CAT6/CAT6/Coax throughout the house terminating to basement patch panel for TV’s, Wifi access points, exterior cameras, etc. HDMI setup in family room.
- Surround system pre-wired in family room
- Alarm system pre-wired on all accessible windows and doors
Ready to learn more about this home or discuss your custom project? Contact us.









