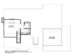
Future Finished Attic
02/04/2021
Future Finished Attic
No Comments
Leave a Comment
“ I can’t say enough good things about what a great experience this has been…”
This site uses Akismet to reduce spam. Learn how your comment data is processed.
“ I can’t say enough good things about what a great experience this has been…”