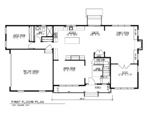
First Floor Plan -08-16-2021
08/17/2021
First Floor Plan
No Comments
Leave a Comment
“ I can’t say enough good things about what a great experience this has been…”
This site uses Akismet to reduce spam. Learn how your comment data is processed.
“ I can’t say enough good things about what a great experience this has been…”