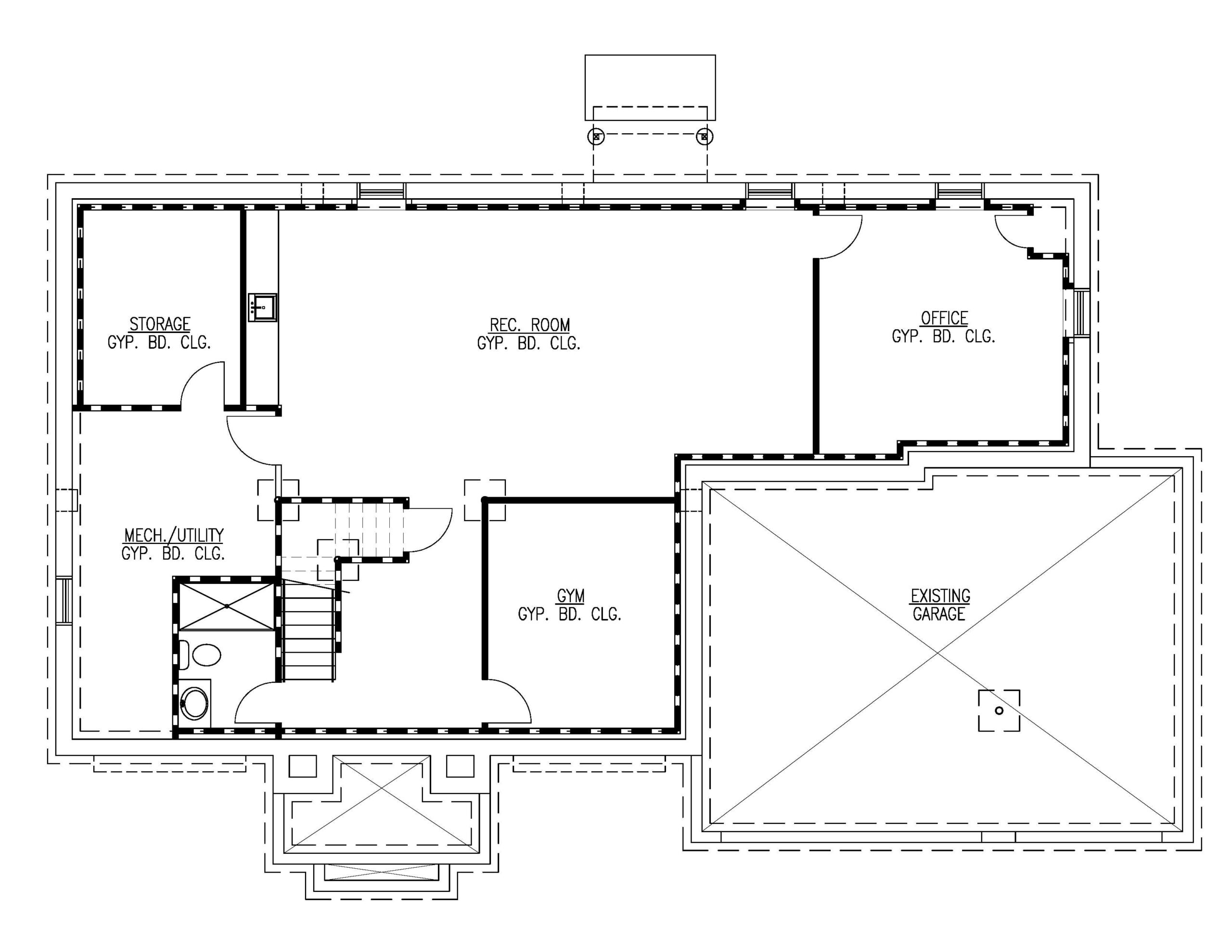
Finished Basement Plan
10/06/2025
Finished Basement Plan
No Comments
Leave a Comment
“ I can’t say enough good things about what a great experience this has been…”
“ I can’t say enough good things about what a great experience this has been…”